Bureau
283 m²
283 m²
CHF 29.-/mois
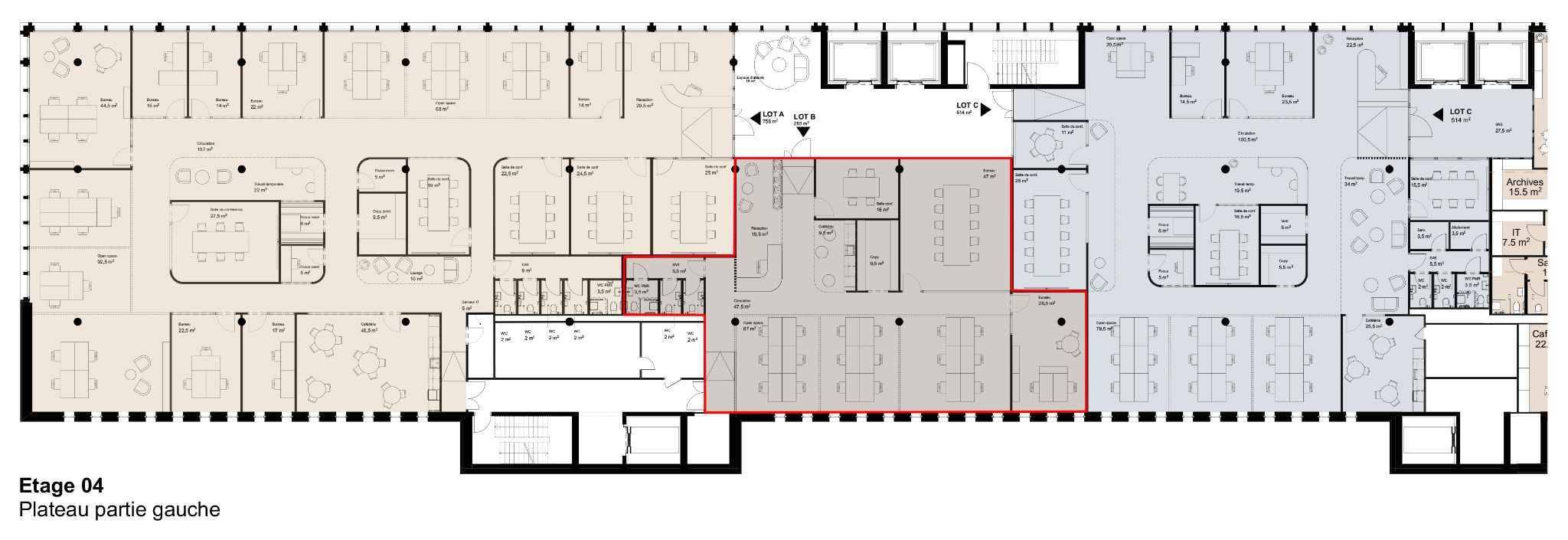
55, chemin de l' Etang, 1219 Châtelaine
4ème étage
A convenir
À louer Bureaux bruts à aménager au Quartier de l'Étang
Découvrez ces bureaux bruts situés au 4? étage d'un bâtiment moderne et fonctionnel, au cur du Quartier de l'Étang à Genève. Idéal pour les entreprises à la recherche d'un espace modulable et évolutif, ce bien offre la possibilité d'un aménagement sur mesure, réalisé par le propriétaire moyennant un surloyer attractif. Points forts : - Bureaux bruts à aménager selon vos besoins - Possibilité d'aménagement clé en main (avec surloyer) - Bâtiment moderne, lumineux et confortable - Prestations de qualité et espaces communs soignés - Environnement résidentiel et commercial attractif - Excellente accessibilité : transports publics et axes routiers à proximité - Quartier dynamique offrant commerces, restaurants et services Ces bureaux représentent une opportunité unique d'implanter votre activité dans un secteur en plein essor, combinant modernité, flexibilité et qualité de vie au travail. Contactez-nous dès aujourd'hui pour plus d'informations ou pour...












































































































