VILLAS NEUVES AVEC JARDIN DANS LA ZONE RÉSERVÉE
Pièces5
Surface habitable167 m²
Prix de l'objetCHF 1'220'000.-
DisponibilitéA convenir
Localisation
6814 CadempinoCaractéristiques
Référence
Cadempino-Villa .n 6 sm
Disponibilité
A convenir
Sanitaires
3
Année de construction
2024
Pièces
5
Surface jardin
59 m²
Surface habitable
167 m²
Descriptif
Voulez-vous une villa neuve et moderne avec jardin et grande véranda à Cadempino dans un quartier calme et réservé ?
Bienvenue à Cadempino, nous vous présentons la nouvelle et exclusive résidence « LA CADEMPINA », composée de huit villas modernes et économes en énergie avec jardins et terrasses privés, situées dans une oasis de confort et de commodité au bout d’un chemin privé réservé exclusivement aux résidents, cette résidence offre une solution de logement parfaite pour ceux qui recherchent la tranquillité sans renoncer à la proximité des services.
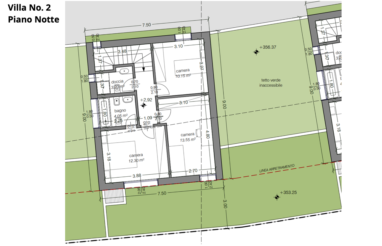
La Villa n° 6 se compose de 3 niveaux intérieurs, reliés par un escalier élégant et confortable, et est divisée comme suit :
- Au rez-de-chaussée, il y a un salon spacieux, qui est relié à une grande cuisine ouverte avec accès direct au porche et au jardin. Il y a aussi un bureau/buanderie avec accès à la véranda, une salle de bains pour les invités avec douche, un local technique et une buanderie/cage d’escalier.
- Au premier étage, il y a deux chambres et une chambre principale avec une salle de bain attenante avec baignoire. De plus, les chambres disposent d’une autre salle de bains avec douche. Toutes les chambres ont accès à la grande terrasse, qui offre une vue panoramique à couper le souffle.
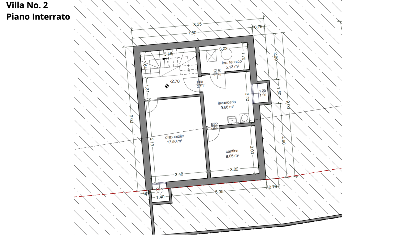
- Au premier sous-sol, il y a un grand garage double, une salle d’étude/loisirs avec accès piétonnier également de l’extérieur, une buanderie, un local technique, un débarras et une cave.
Fonctionnalités:
- Excellente exposition au soleil
- Nouveaux bâtiments résidentiels élégants de trois étages
- Jardin privé et accès exclusif
- Chemin privé réservé aux résidents
- Surface habitable de 167 mètres carrés
- 2 places de parking couvertes dans le garage
Caractéristiques de conception
- Chauffage et refroidissement par le sol avec pompe thermique
- Isolation thermique et acoustique extérieure
- Prédisposition à la climatisation
- Installation de systèmes photovoltaïques pour économiser les coûts énergétiques
Le jardin, déjà planté de haies, de plantes et de fleurs, est équipé d’un système d’irrigation qui garantit un espace extérieur bien entretenu et accueillant.
Prêt à être livré et adapté en interne aux solutions en construction.
La possibilité d’évaluer les permutations sur votre bien !
CES VILLAS AVEC DIFFÉRENTS INTÉRIEURS ET JARDINS SONT TOUJOURS DISPONIBLES :
Villa 2 chf 1.290.000,00
Villa 3 chf 1.290.000,00
Villa 4 chf 1.340.000,00
Villa 5 chf 1.310.000,00
Ne manquez pas l’occasion de vivre dans cet environnement privilégié. Contactez-nous dès aujourd’hui pour plus d’informations ou pour réserver une visite !



















