Jolie villa à la campagne au calme !
Localisation
Rte d'Essert 57, 1724 Essert FRCaractéristiques
Nombre de places de parc
Descriptif
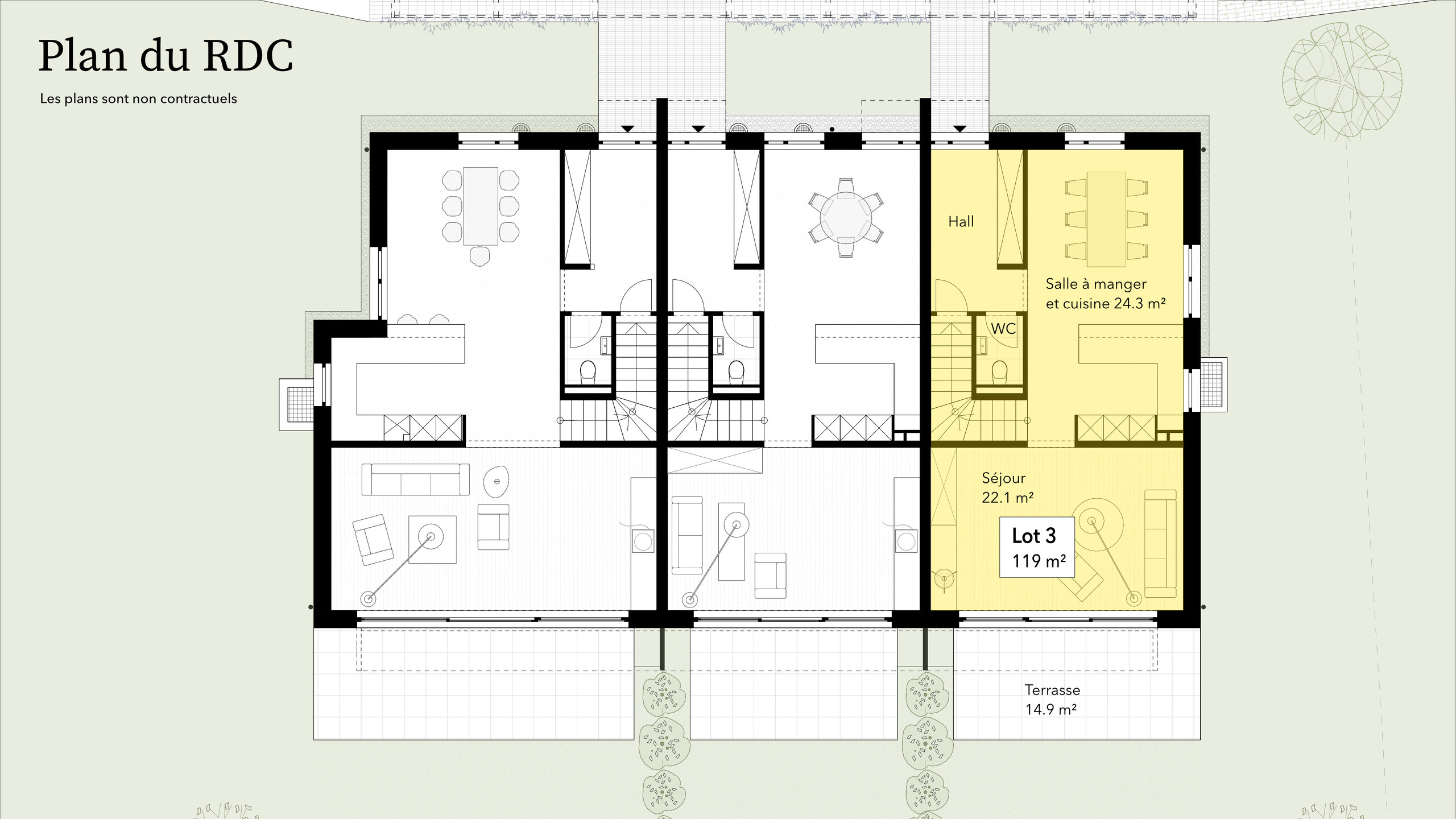
Cette jolie villa contiguë en ossature bois de 5 pièces et 119 m² habitables est située sur une parcelle de 217 m².
Elle offre un espace de vie agréable et lumineux, parfaitement adapté à une famille.
La villa dispose d’une terrasse de 14,9 m², idéale pour profiter de l’extérieur. Avec ses pièces bien agencées et son jardin, elle combine confort et praticité.
Ce bien est situé dans un cadre calme, avec une très belle vue sur la nature !
À 10 min de l'autoroute et à 15 min de Fribourg.
CONFORT
Environnement calme
Construction en ossature bois
Dégagement sur la campagne
Vue sur les Préalpes fribourgeoises
Une belle terrasse de 14,9 m2 sans vis-à-vis
Grande baie vitrée
Spacieux et lumineux
Chauffage au sol par pompe à chaleur
Sols, sanitaires et cuisine : choix au gré du preneur
Une place de parc couverte à CHF 15'000.- en sus
Une place de parc non-couverte à CHF 10'000.- en sus
Disponibilité : Printemps 2027
ACCÈS
À 10 min de l'autoroute
À 15 min de Fribourg
À 20 min de Bulle
À 35 min de Vevey
Transports publics
À 10 min à pied du bus
REZ-DE-CHAUSSÉE
Un hall d'entrée avec armoire encastrée et WC visiteurs, une grande cuisine séparée avec salle à manger, un joli séjour avec accès à la terrasse et au jardin.
ÉTAGE
Une suite parentale avec douche, deux jolies chambres et une salle de bains.
SOUS-SOL
Cave et buanderie.
AMÉNAGEMENTS EXTÉRIEURS
Une terrasse orientée sud-est de 14,9 m2 et un jardin. Deux places de parc extérieures, dont une sous-couvert.
REMARQUE
15 villas sont proposées à la vente pour ce projet, découvrez-les sur www.muller-immobilier.ch/mouret
Commodités
Environnement
- Village
- Quartier de villas
- Verdoyant
- Montagnes
- Restaurant(s)
- Arrêt de bus
- Centre sportif
- Station de ski
Extérieur
- Terrasse(s)
- Jardin
- Place(s) de parc couverte(s)
Intérieur
- Cuisine ouverte
- WC visiteurs
- Cave
- Armoires encastrées
- Triple vitrage
- Lumineux
Equipement
- Cuisine agencée
- Baignoire
- Douche
Sol
- A choix
Exposition
- Sud
- Est
Ensoleillement
- Favorable
Vue
- Belle vue
- Sans vis-à-vis
- Forêt
- Montagnes












