Un cadre unique pour une vie idéale à 8 min de Marly !
Localisation
Rue de Fribourg 1, 1723 MarlyCaractéristiques
Nombre de places de parc
Descriptif
Cette jolie villa contiguë en ossature bois de 6 pièces et 144 m² habitables est située sur une parcelle de 311 m² à Essert.
Elle offre une belle terrasse de 19,3 m², idéale pour profiter de l’extérieur.
Située à seulement 10 minutes de l’arrêt de bus, cette villa allie confort, praticité et accessibilité.
Le joli jardin complète ce bien, offrant un cadre de vie agréable et calme.
À 10 min de l'autoroute et à 15 min de Fribourg.
CONFORT
Environnement calme
Construction en ossature bois
Dégagement sur la campagne
Vue sur les Préalpes fribourgeoises
Une belle terrasse de 19,3 m2 sans vis-à-vis
Grande baie vitrée
Spacieux et lumineux
Chauffage au sol par pompe à chaleur
Sols, sanitaires et cuisine : choix au gré du preneur
Une place de parc couverte à CHF 15'000.- en sus
Une place de parc non-couverte à CHF 10'000.- en sus
Disponibilité : Printemps 2027
ACCÈS
À 10 min de l'autoroute
À 15 min de Fribourg
À 20 min de Bulle
À 35 min de Vevey
Transports publics
À 10 min à pied du bus
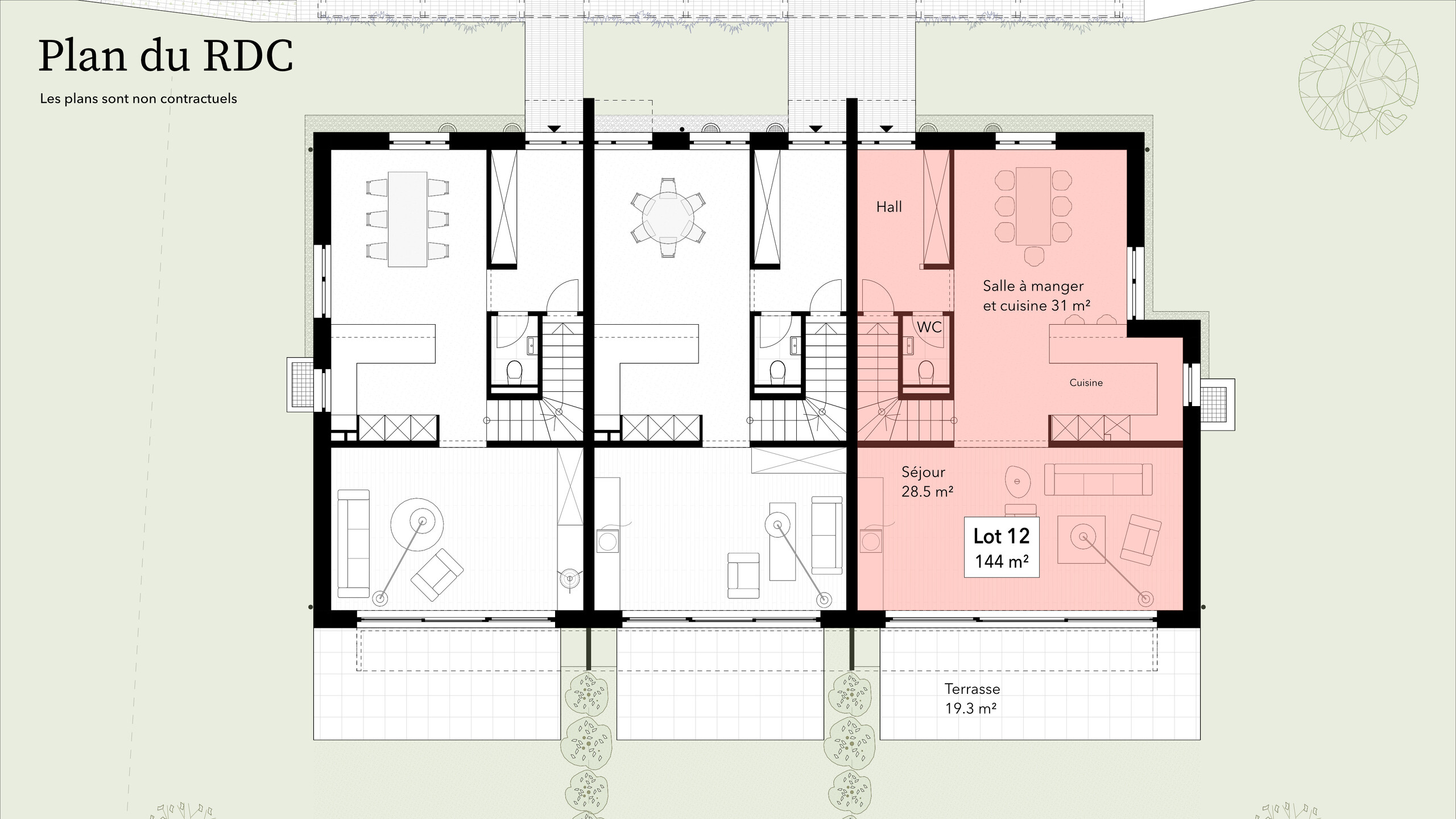
REZ-DE-CHAUSSÉE
Un hall d'entrée avec armoire encastrée et WC visiteurs, une grande cuisine séparée avec salle à manger, un joli séjour avec accès à la terrasse et au jardin.
ÉTAGE
Une suite parentale avec douche, trois jolies chambres et une salle de bains.
SOUS-SOL
Cave et buanderie.
AMÉNAGEMENTS EXTÉRIEURS
Une terrasse orientée sud-est de 19,3 m2 et un jardin. Deux places de parc extérieures, dont une sous-couvert.
REMARQUE
15 villas sont proposées à la vente pour ce projet, découvrez-les sur www.muller-immobilier.ch/mouret
Commodités
Environnement
- Village
- Quartier de villas
- Verdoyant
- Montagnes
- Restaurant(s)
- Arrêt de bus
- Centre sportif
- Station de ski
Extérieur
- Terrasse(s)
- Jardin
- Place(s) de parc couverte(s)
Intérieur
- Cuisine ouverte
- WC visiteurs
- Cave
- Armoires encastrées
- Triple vitrage
- Lumineux
Equipement
- Cuisine agencée
- Baignoire
- Douche
Sol
- A choix
Exposition
- Sud
- Est
Ensoleillement
- Favorable
Vue
- Belle vue
- Sans vis-à-vis
- Forêt
- Montagnes












