9 villas contemporaines à Treyvaux – nouvelles constructions
Localisation
Les Biolleyres 7, 1733 TreyvauxCaractéristiques
Nombre de places de parc
Descriptif
Villas Les Horizons de la Sarine - À Treyvaux
Architecture contemporaine, vue spectaculaire sur la région et environnement calme et privilégié : les villas se situent au bout d’une impasse dans un quartier résidentiel paisible.
Implanté en bordure de zone agricole, ce projet propose 9 villas conçues pour offrir confort, luminosité et qualité de vie.
Des espaces pensés pour le quotidien
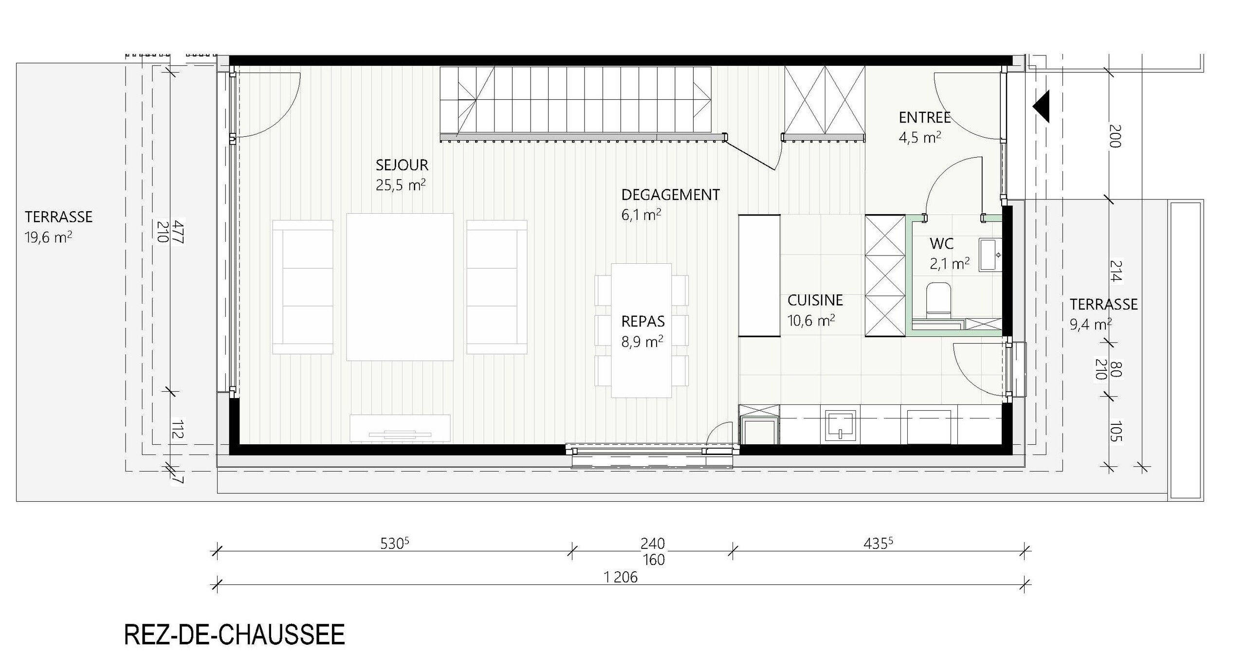
- Cuisine moderne et entièrement équipée, avec îlot central convivial
- Séjour lumineux orienté sud avec accès direct à la terrasse et au jardin privatif
- Trois salles d’eau aux finitions soignées
- Trois chambres spacieuses, dont une suite parentale d’environ 20 m² avec dressing
- Grande terrasse principale orientée sud et/ ou sud-ouest
- Seconde terrasse orientée nord et/ou nord-est
- Deux places de parc par villa, dont une couverte (en sus)
- Rez spacieux avec cuisine ouverte sur le séjour
Un emplacement recherché
- Vue imprenable sur la région
- Quartier résidentiel calme situé au bout d’une impasse
- Situation privilégiée en bordure de zone agricole (Est, Sud et Ouest)
- Accès rapide à l’autoroute A12 : Rossens à moins de 10 minutes, Bulle et Granges-Paccot à moins de 20 minutes
- Lignes de bus TPF : Treyvaux–Fribourg et Bulle–Fribourg via Le Pratzey
- Centre du village à environ 15 minutes à pied
- Forêt d’Essert à moins de 10 minutes, idéale pour les promenades et offrant un véritable îlot de fraîcheur naturel
- Marly à 10 minutes et Fribourg à moins de 20 minutes
Energie
- Maisons entièrement indépendantes
- Pompe à chaleur avec sonde géothermique
- Panneaux photovoltaïques individuels
Construction
- Nouvelles constructions réalisées avec des matériaux de qualité et des finitions soignées
- Personnalisation des finitions possible selon les choix de l’acquéreur
Les avantages du neuf
- Construction neuve avec garanties
- Choix des matériaux, finitions et agencements
- Espaces ouverts et lumineux, pensés pour les modes de vie actuels
- Volumes modernes et flexibles, loin des plans anciens cloisonnés
Acheter du neuf, c’est investir dans la tranquillité, la durabilité et la liberté de personnalisation.
Prix de vente
- Villas centrales : dès CHF 1'020'000.-
- Villas latérales : dès CHF 1'070'000.-
Pour toutes questions ou visites veuillez contacter Monsieur Jérôme Mauron à l'adresse mail contact@leshorizons.ch
Brochure complète et plans détaillés sur le lien ci-dessous.
www.leshorizons.ch
Commodités
Environnement
- Village
- Quartier de villas
- Verdoyant
- Commerces
- Poste
- Restaurant(s)
- Arrêt de bus
- Entrée/sortie autoroute
- Enfants bienvenus
- Crèche/garderie
- Ecole maternelle
- Ecole primaire
- Sentiers de randonnée
- Terrain de football
- Salle de spectacle
- Médecin
Extérieur
- Terrasse(s)
- Jardin
- Utilisation exclusive du jardin
- Jardin en copropriété
- Silencieux/tranquille
- Verdure
- Place(s) de parc couverte(s)
- Parking
- Construit à flanc de colline
- Accès de plain pied
Intérieur
- Cuisine ouverte
- WC séparés
- WC visiteurs
- Dressing
- Cave
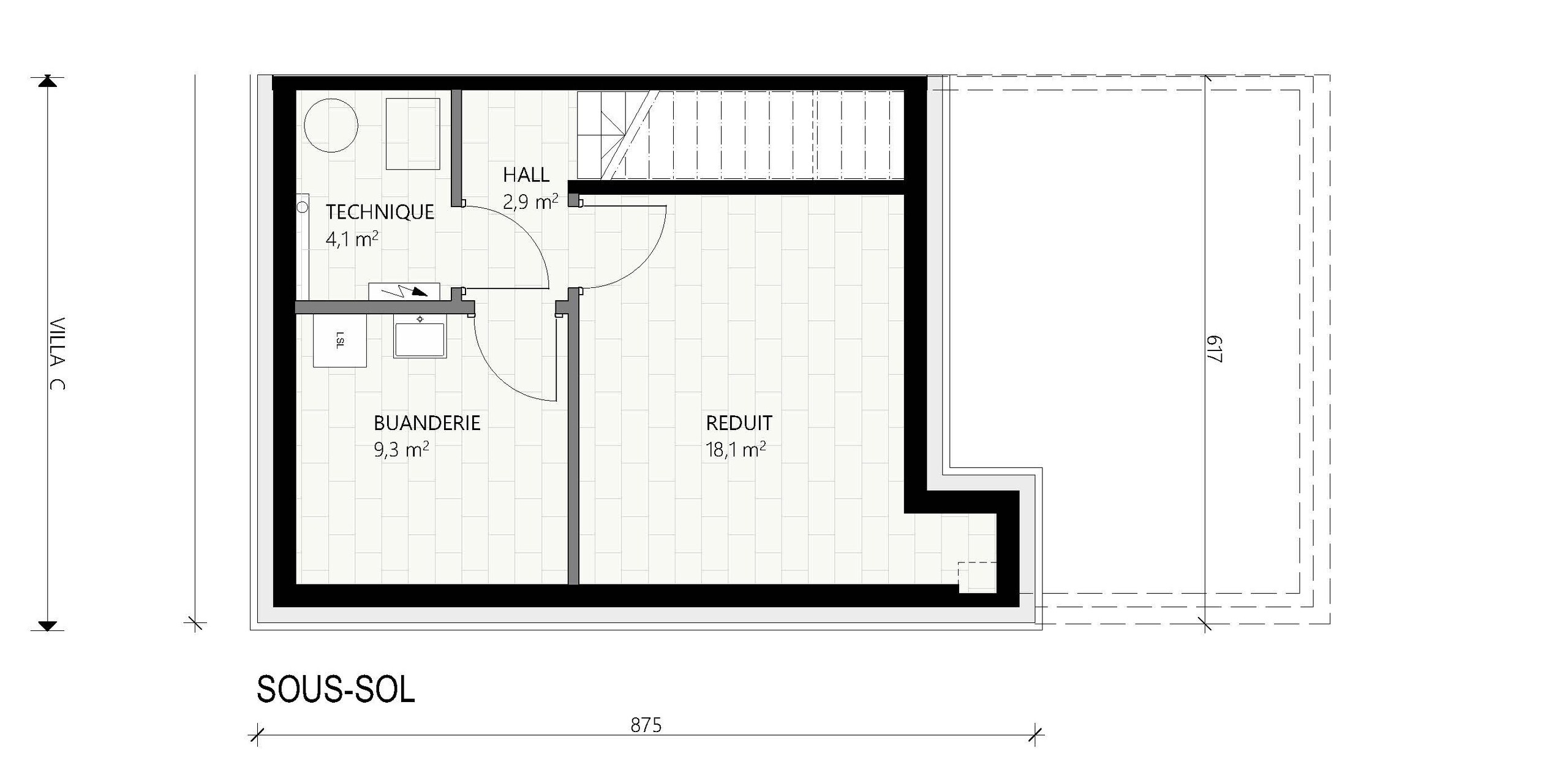
- Réduit
- Armoires encastrées
- Accès au chauffage
- Triple vitrage
- Lumineux
- Traversant
- Lumière naturelle
Equipement
- Cuisine équipée
- Cuisine avec îlot
- Plaques à induction
- Four
- Réfrigérateur
- Congélateur
- Lave-vaisselle
- Lave-linge
- Sèche-linge
- Branchements pour colonne de lavage
- Baignoire
- Douche
- Panneaux photovoltaiques
- Connexion Internet
- Fibre optique
- Stores électriques
- Borne voiture électrique
Sol
- A choix
Etat
- Neuf
Exposition
- Sud
- Ouest
Ensoleillement
- Optimal
- Toute la journée
Vue
- Belle vue
- Dégagée
- Vue lointaine
- Vue sur la vallée
- Imprenable
- Panoramique
- Sans vis-à-vis
- Champêtre
- Jardin
- Champs
- Forêt
- Montagnes
Style
- Moderne


























