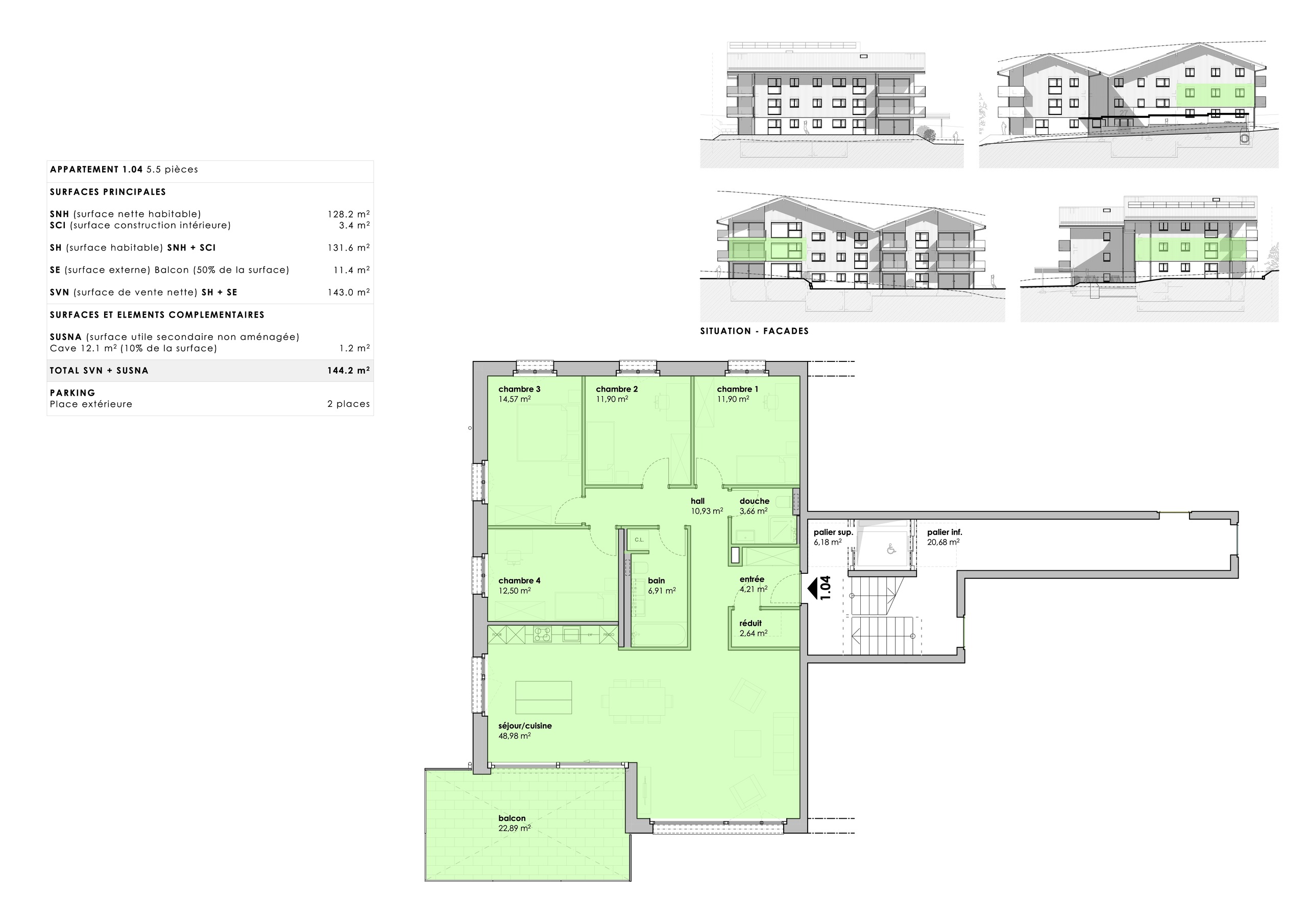
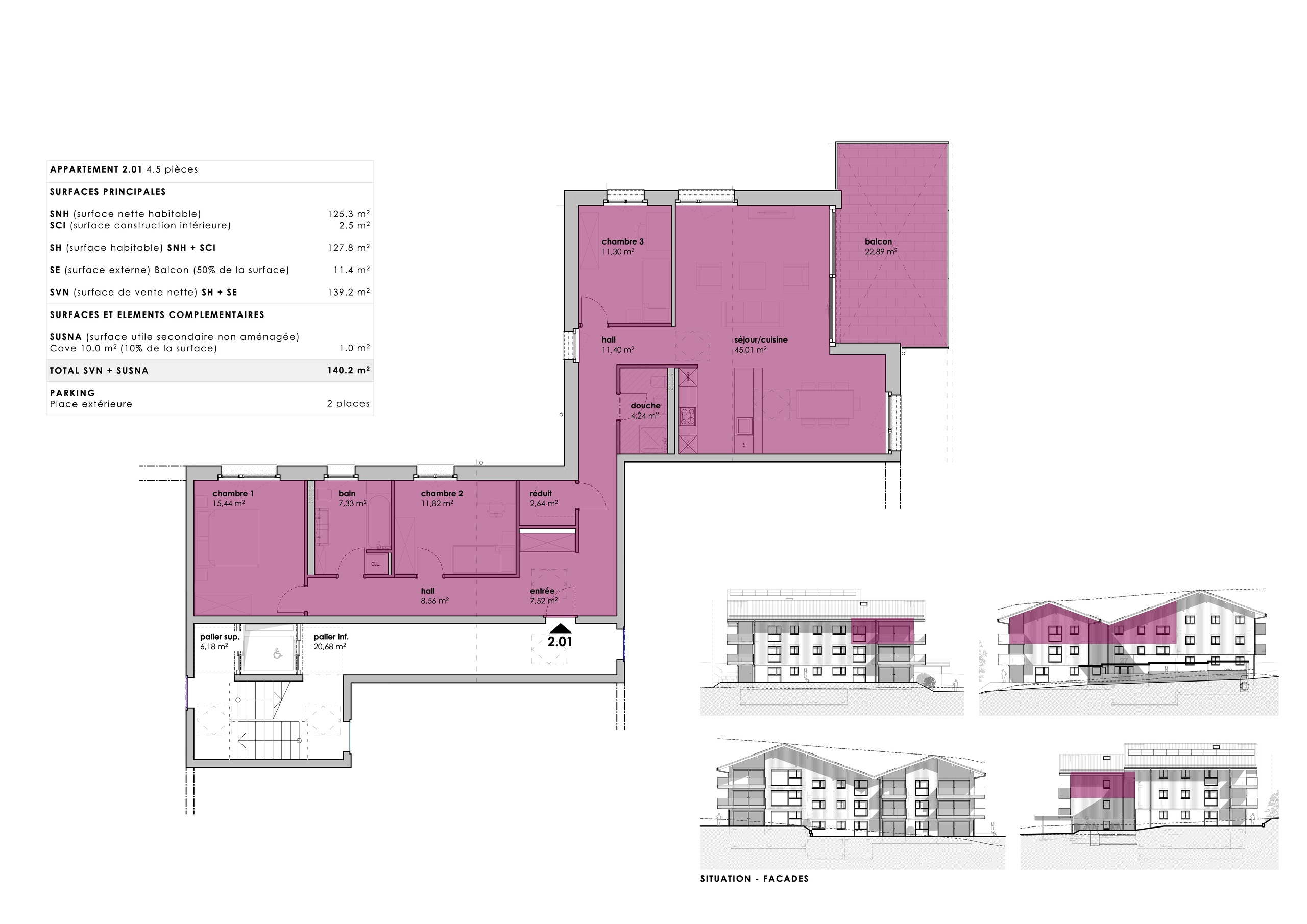
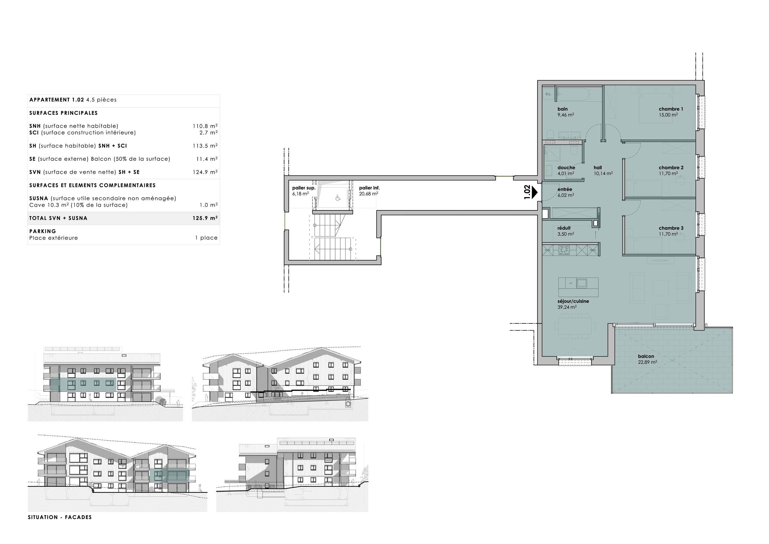
Eigentumswohnung
CHF 540'000.-
CHF 6'081.-/m²
Rue de la Vignette 9, 1530 Payerne
In der Nähe des Bahnhofs, in einem neuen, grünen Viertel
Moderne, hochwertige Wohnungen, sehr gut ausgestattet, in der Nähe des Bahnhofs Payerne, in einem neuen Wohngebäude mit 15 Wohnungen unterschiedlicher Grösse, sehr gut vernetzt, inmitten eines grossen, geschützten und gepflegten, zentralen Grünraums, dem wahren Herzstück des Quartiers, mit Fusswegen, Ruhezonen und Spielplätzen. 3.5-Zimmer-Wohnung im 2. Stock – Wohnfläche von über 40 m2, Küche mit Kochinsel, Vorratsraum, Loggia mit Südlage – 2 grosse Schlafzimmer – Badezimmer mit Badewanne und Vorinstallation für eine Waschtischkolonne – Eingangsbereich mit eingebauten Schränken – Keller – Veloraum Link zur Website der Liegenschaft: https://payerne.maillardimmo.ch/fr Appartements modernes, de qualité supérieure, très bien équipés, proches de la gare de Payerne, dans un nouvel immeuble résidentiel de 15 appartements aux topologies multiples, parfaitement connectés, implantés au sein d’un grand espace vert central protégé et aménagé, véritable cœur...