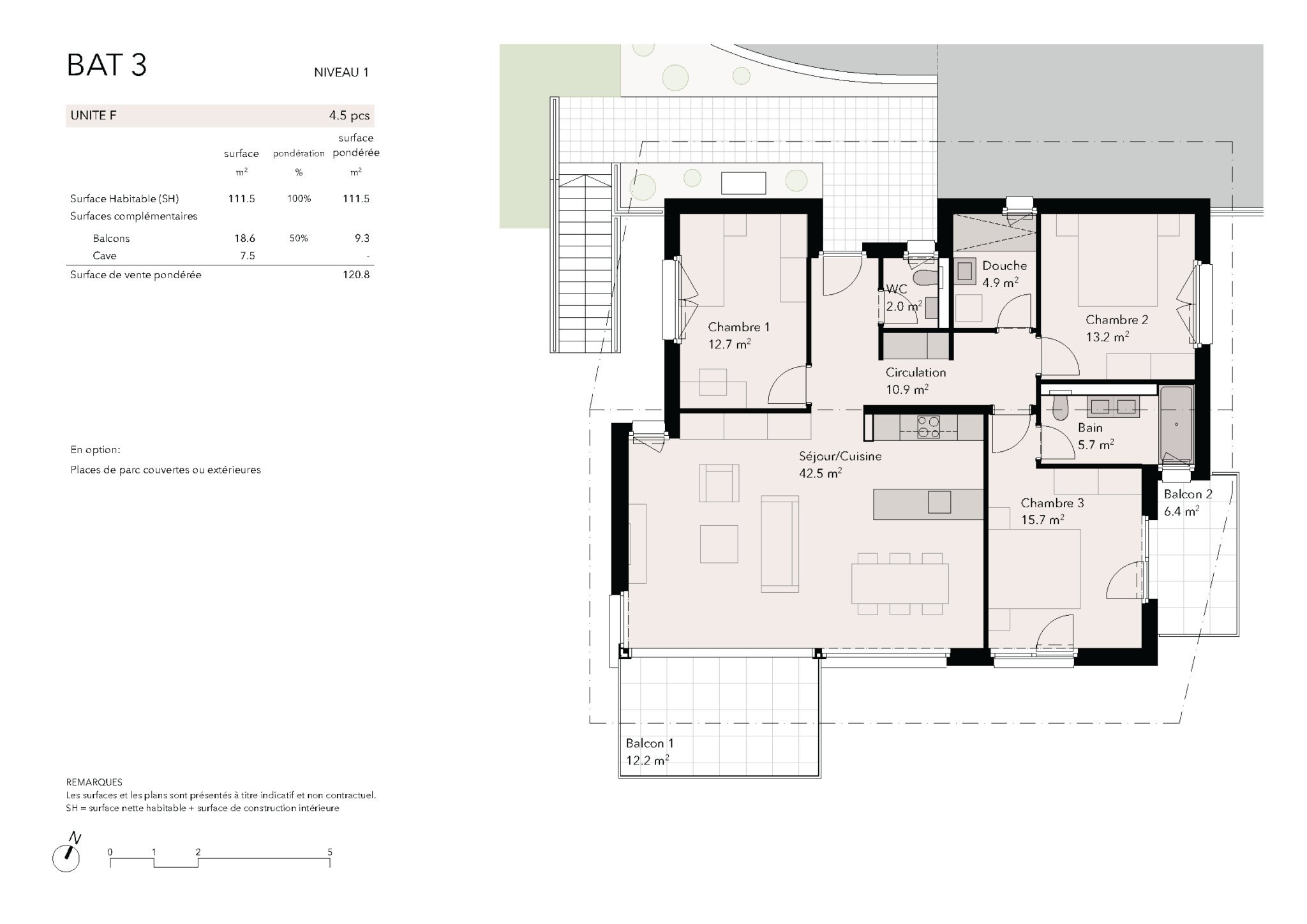
Attikawohnung
CHF 995'000.-
CHF 10'365.-/m²
Chemin de Chanélaz 15, 2016 Cortaillod
Sonne, Ruhe und Geborgenheit für dieses 3,5-Zimmer-Dachgeschoss-Apartment.
Masini Immobilier präsentiert Ihnen: Dieses wunderschöne 3,5-Zimmer-Dachgeschoss-Apartment im 3. Stock eines modernen, zeitgenössischen Neubaus, ideal gelegen am Hang, im Herzen eines ruhigen, grünen Familienviertels. Hauptmerkmale: • Wohnfläche: grosszügig und hell, mit 96 m² Wohnfläche, die einen komfortablen und funktionalen Wohnraum bietet. • Aussenbereich: eine wunderschöne Terrasse von über 130 m², ideal für Mahlzeiten im Freien und zum Entspannen. • Bauweise: modernes, umweltfreundliches Gebäude, das den neuesten Energieanforderungen entspricht. Dieses Anwesen inmitten der Natur bietet ein einzigartiges Wohnumfeld: • Ruhige Lage, ideal für Familien. • Nähe zu Schulen, Geschäften, öffentlichen Verkehrsmitteln, dem See und den Stränden. • Direkter Zugang zu Wanderwegen und zur umliegenden Natur. Warum dieses Apartment? • Ruhige, grüne Umgebung und dennoch in der Nähe von Annehmlichkeiten. • Komfort eines modernen, neuen Gebäudes. • Seltener...