Büro
Preis auf Anfrage
Fontaine 4, 2034 Peseux
Sofort
Geschäfts-/Büro-Arkade - Exzellente Lage - Region Neuchâtel
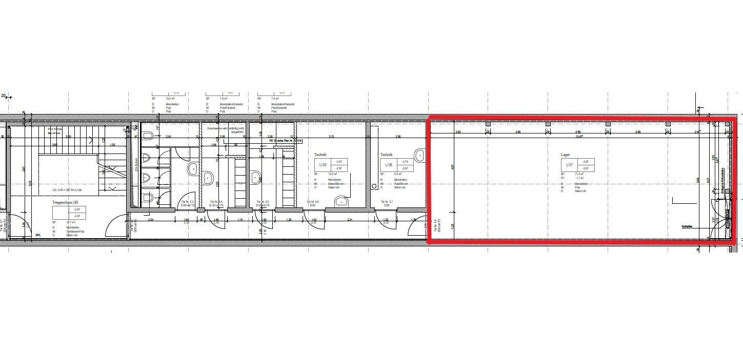
Dieses helle und moderne Objekt befindet sich im Herz der Gewerbezone von Peseux und bietet eine vielseitige Fläche, die sich ideal für eine Gewerbearkade oder modulare Büros eignet. Das Objekt ist von Geschäften wie Denner, Migros, Maxi Bazar sowie zahlreichen Restaurants und Dienstleistungen umgeben und geniesst somit eine strategische Lage und eine hervorragende Sichtbarkeit. Ausstattung Nutzung: Büro / Gewerbearkade Grösse: 275 m² Stockwerk: Erdgeschoss Rezeption mit automatischen Türen Lichtdurchfluteter Open Space Unabhängige Büros Gestaltete Küche WC Stockwerk: Untergeschoss Sicherheitsschliessfach Lagerraum Archivraum Deckenhöhe: 2,8 Meter Lage Zentral in Peseux gelegen Bus-Haltestelle vor dem Gebäude 13 Minuten von der SBB-Station Neuchâtel entfernt Schnelle Anbindung an die Autobahn A5 (5 Minuten) Interessiert? Möchten Sie mehr erfahren? Unsere Spezialisten stehen Ihnen zur Verfügung und beantworten Ihre Fragen umgehend Situé en plein cœur de la zone...














































































