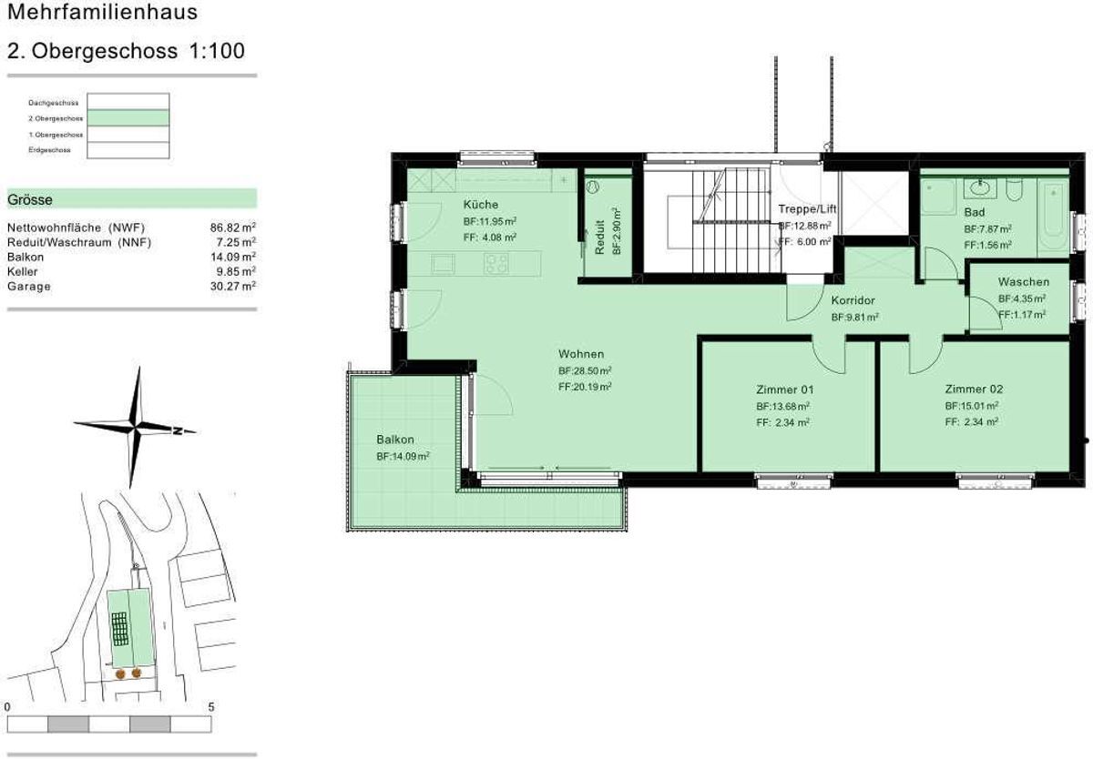
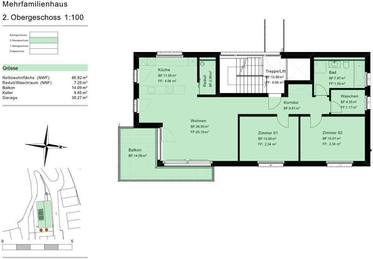
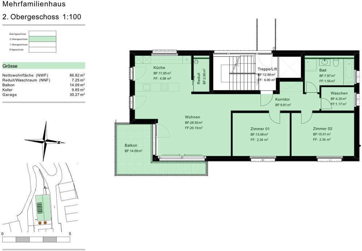
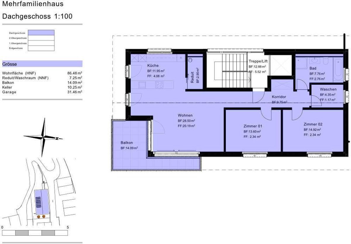
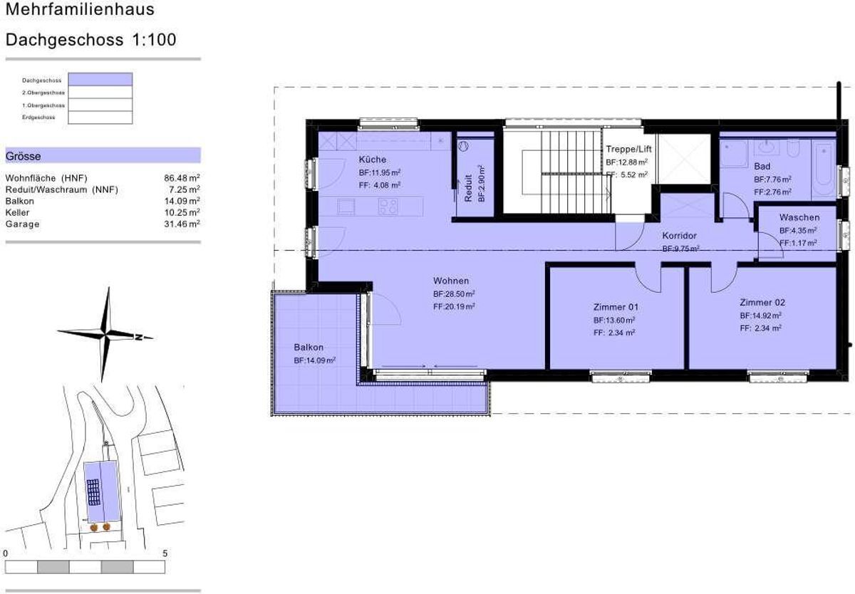
Attique
CHF 1'295'000.-
CHF 12'333.-/m²
Hauptstrasse 64, 7075 Churwalden
Votre nouvelle résidence secondaire dans la destination toute l’année de Churwalden
Le bâtiment d’habitation «Witi» avec un total de 9 appartements est en construction au cœur de Churwalden. Vous serez séduit par un mélange d’appartements de vacances et d’appartements résidentiels, avec des qualités spatiales et des plans intéressants. Churwalden est la porte d’entrée de la perle touristique Arosa-Lenzerheide et se trouve à 1230 m d’altitude. D’une part, la proximité du pôle touristique de Lenzerheide est attrayante, d’autre part, vous pouvez profiter d’une animation et d’une action exceptionnelles dès la porte d’entrée avec la montagne de loisirs Pradaschier. En hiver, le domaine pour enfants de Churwalden est très apprécié. Le domaine skiable est bien structuré et familial et offre un accès direct aux nombreuses pistes de ski d’Arosa-Lenzerheide. Le Dreibündenstein, qui réunit les domaines de Pradaschier, Brambrüesch et Feldis, est depuis longtemps un lieu de prédilection pour les randonneurs en raquettes et les skieurs...