Maison individuelle
CHF 1'090'000.-
CHF 7'517.-/m²
chemin de la Piantsèta 9, 1731 Ependes FR
Charmante villa individuelle à 5 min de Marly
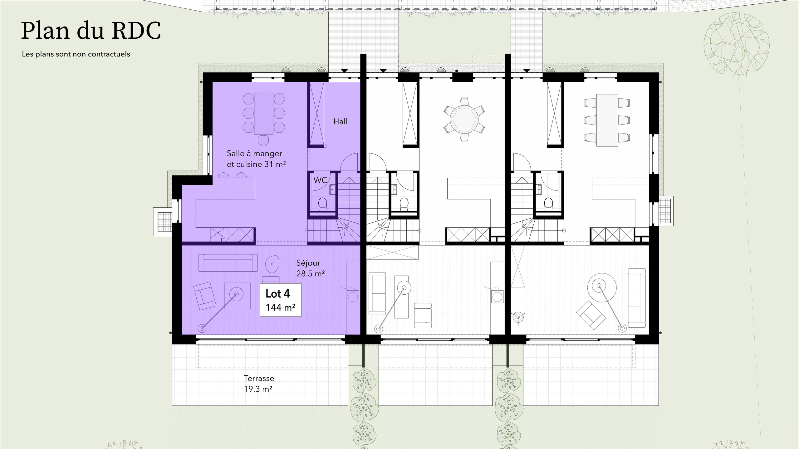
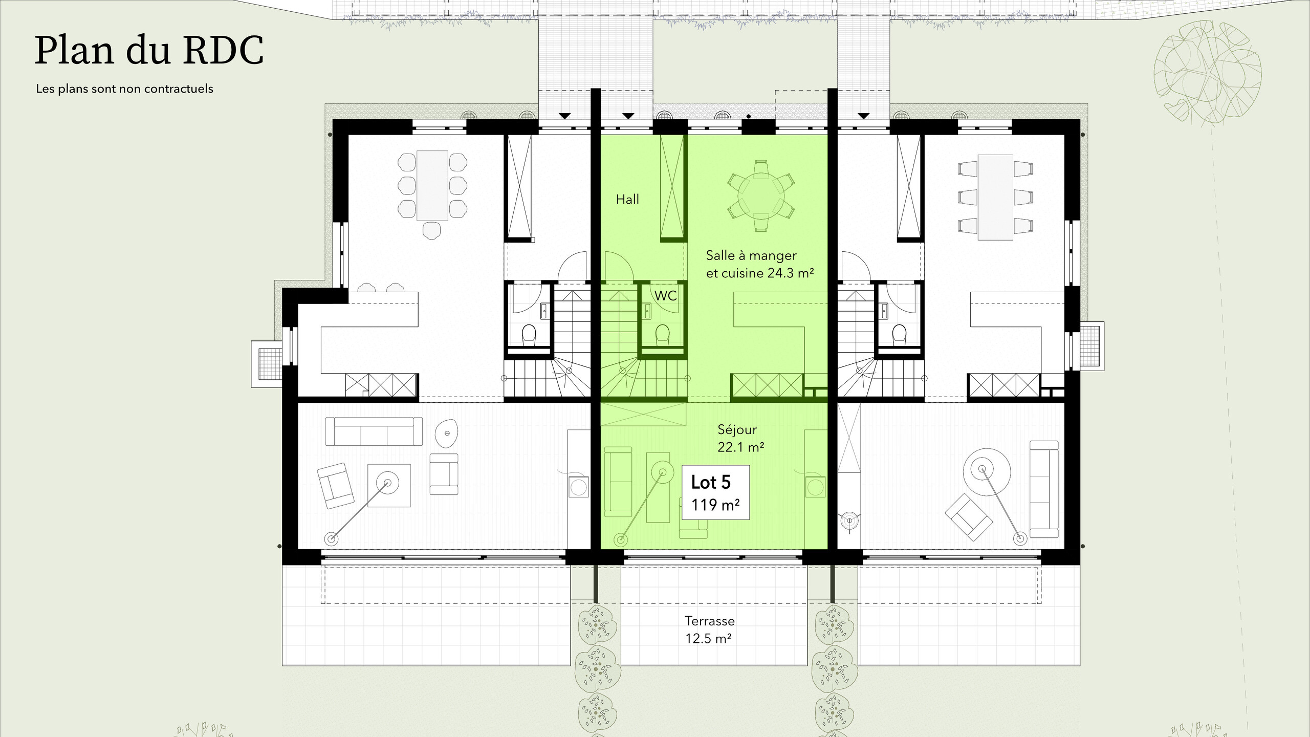
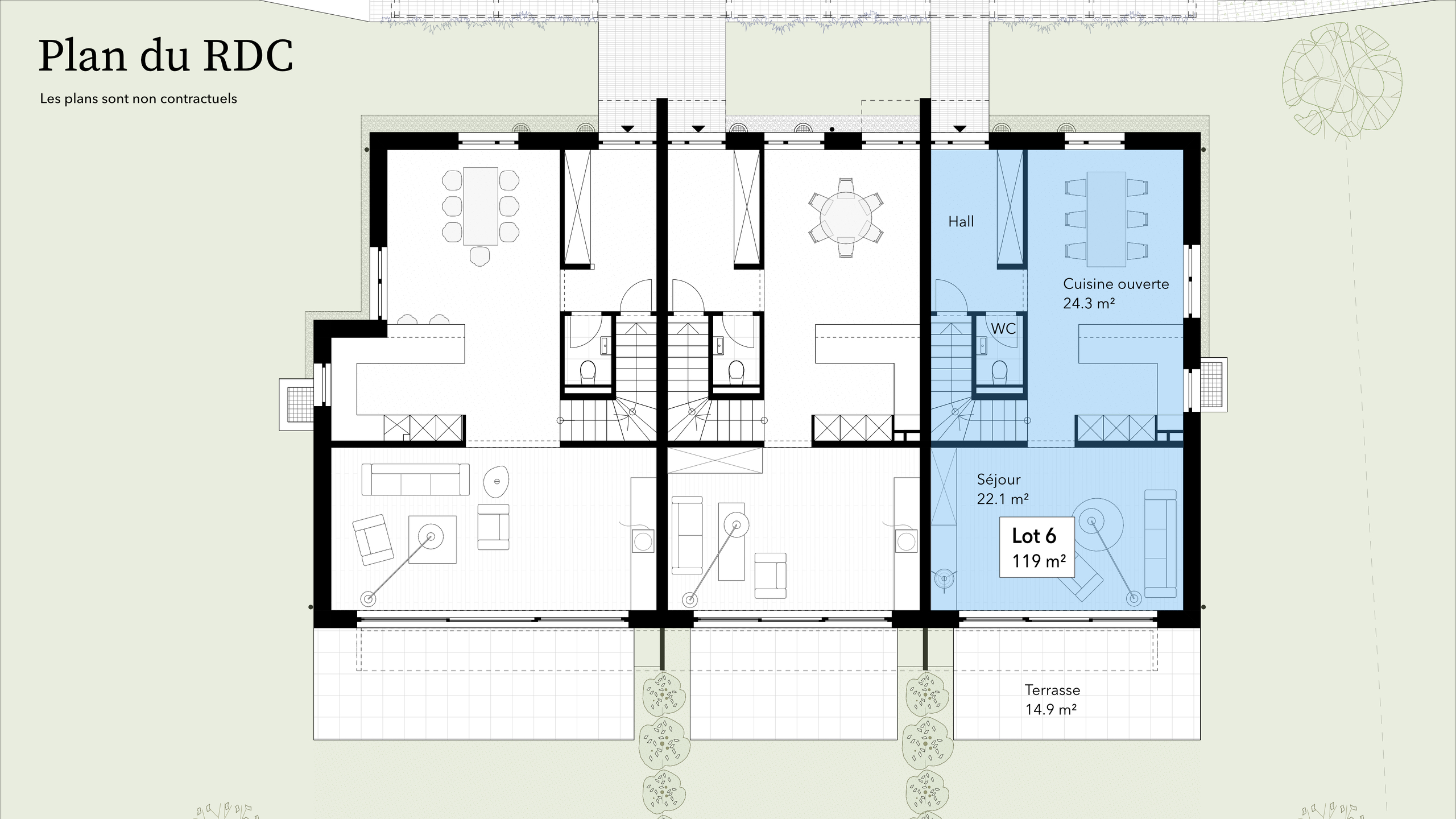
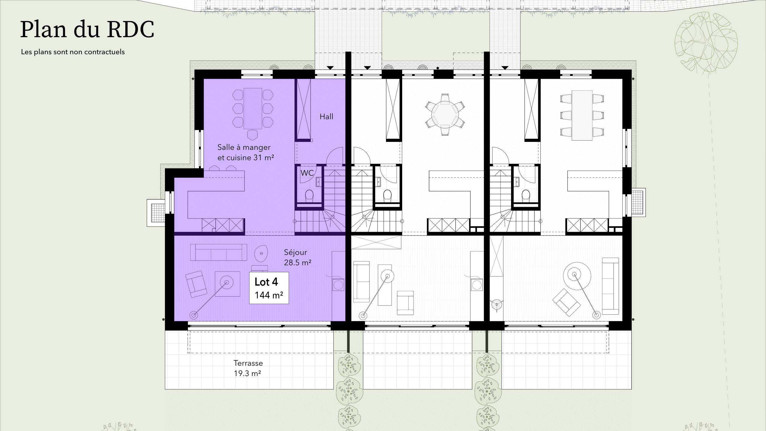
Cette charmante maison individuelle vous offre un cadre de vie paisible dans un quartier résidentiel verdoyant. Située à proximité de Marly et de Fribourg, cette magnifique maison de 6,5 pièces de 145m² offre un cadre de vie exceptionnel alliant espace, confort et nature. Elle bénéficie également d'un grand jardin, permettant de profiter pleinement des extérieurs. Le bien est à rénover, offrant ainsi un beau potentiel de transformation et une excellente opportunité pour un projet personnalisé. REPARTITION : Rez de chaussée: -Entrée avec armoires encastrées -Cuisine / Salle à manger de 18m² -Séjour de 27m² avec poêle à granule et bois -Chambre de 15m² -1 Salle de douche 1er étage: -4 belles chambres mansardés de 16m², 18m²et 13m² et 12m², dont 2 avec accès au balcon -1 salle de bain -1 réduit -Accès au galetas Sous-sol : -Buanderie de 13m² -Cave /Disponible 29m² -Garage 40m² Extérieurs : -1 grand jardin arboré -1 grande terrasse -1 réduit à...