Maison
5.5 Pièces
1724 Le Mouret
Rez-de-chaussée
Immédiatement
RESERVEE Tentlingen en allemand ou Tinterin en français, est une commune singinoise située aux portes de Fribourg et de Marly. Ce charmant village offre une proximité à toutes les commodités nécessaires, telles que boulangeries, commerces, restaurants, transports publics, etc. Les nombreuses zones vertes permettent de s'évader en toute tranquillité pour profiter de belles balades en famille dans la nature, pour se retrouver entre amis pour pratiquer son sport et pour se reposer en dévorant son livre préféré. En 2023, 1'358 citoyens formaient ce village culminant à 779 mètres d'altitude, à son plus haut point. Sa situation proche des grandes agglomérations permet aux habitants de Tinterin de bénéficier aussi de toutes les infrastructures de Fribourg et de Berne, telles que les hautes écoles spécialisées, les universités, les clubs de sport de haut niveau, les activités festives et culturelles ainsi que toutes les administrations publiques...
Villa
5 Pièces
5 Pièces
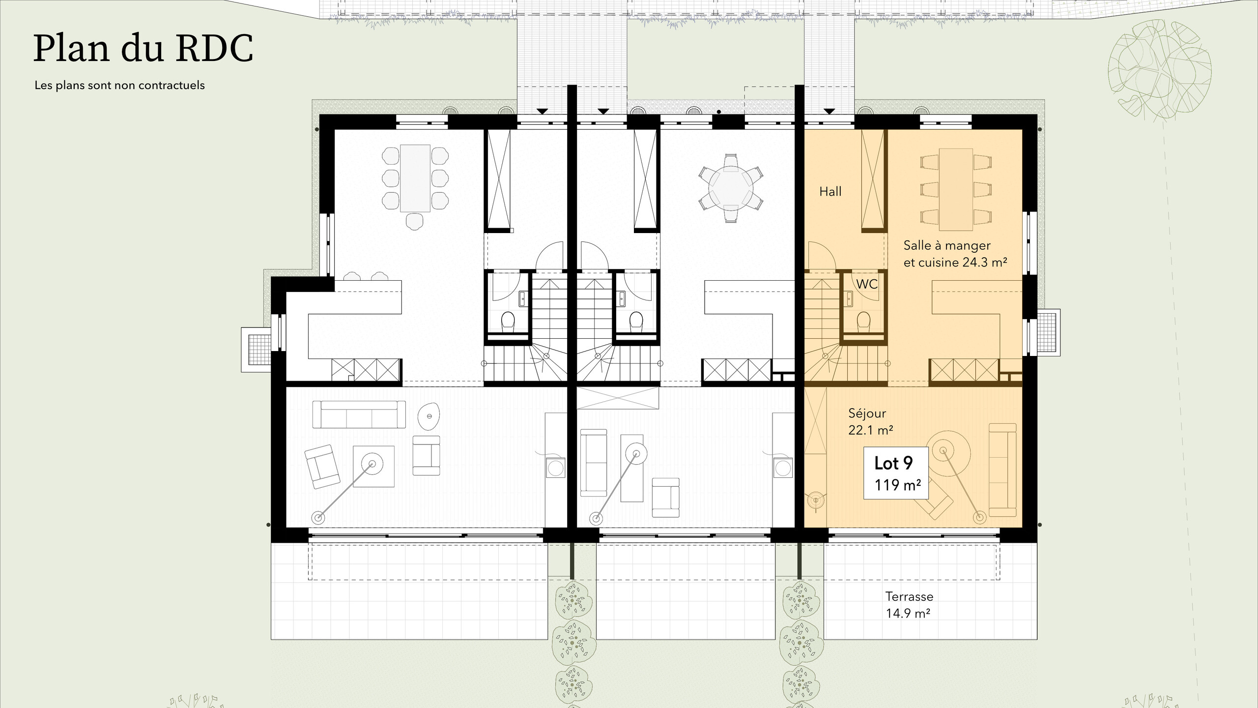
119 m²
119 m²
CHF 880'000.-
CHF 7'395.-/m²
Rout d'Essert 57, 1724 Le Mouret
A convenir
L'équilibre parfait entre confort et nature
Cette jolie villa contiguë en ossature bois de 5 pièces et 119 m² habitables est située sur une parcelle de 265 m². Elle offre une terrasse de 14,9 m², idéale pour profiter de l’extérieur. Située à seulement 10 minutes de l’arrêt de bus, la villa bénéficie également d’une magnifique vue sur les Préalpes fribourgeoises. À seulement 10 min de l'autoroute et 15 min de Fribourg CONFORT Environnement calme Construction en ossature bois Dégagement sur la campagne Vue sur les Préalpes fribourgeoises Une belle terrasse de 14,9 m2 sans vis-à-vis Grande baie vitrée Spacieux et lumineux Chauffage au sol par pompe à chaleur Sols, sanitaires et cuisine : choix au gré du preneur Une place de parc couverte à CHF 15'000.- en sus Une place de parc non-couverte à CHF 10'000.- en sus Disponibilité : Printemps 2027 ACCÈS À 10 min de l'autoroute À 15 min de Fribourg À 20 min de Bulle À 35 min de Vevey Transports publics À 10 min à pied du bus...
Villa
5 Pièces
5 Pièces
119 m²
119 m²
CHF 790'000.-
CHF 6'639.-/m²
Route d'Essert 57, 1724 Le Mouret
A convenir
Un cadre unique pour une vie idéale !
Cette charmante villa contiguë en ossature bois de 5 pièces et 119 m² habitables est située sur une parcelle de 167 m². La villa dispose d’une terrasse de 12,5 m², idéale pour se détendre à l’extérieur. Avec un jardin bien aménagé, ce bien allie confort et fonctionnalité. À seulement 10 min de l'autoroute et 15 min de Fribourg CONFORT Environnement calme Construction en ossature bois Dégagement sur la campagne Vue sur les Préalpes fribourgeoises Une belle terrasse de 12,5 m2 sans vis-à-vis Grande baie vitrée Spacieux et lumineux Chauffage au sol par pompe à chaleur Sols, sanitaires et cuisine : choix au gré du preneur Une place de parc couverte à CHF 15'000.- en sus Une place de parc non-couverte à CHF 10'000.- en sus Disponibilité : Printemps 2027 ACCÈS À 10 min de l'autoroute À 15 min de Fribourg À 20 min de Bulle À 35 min de Vevey Transports publics À 10 min à pied du bus REZ-DE-CHAUSSÉE Un hall d'entrée avec armoire...
Villa
6 Pièces
6 Pièces
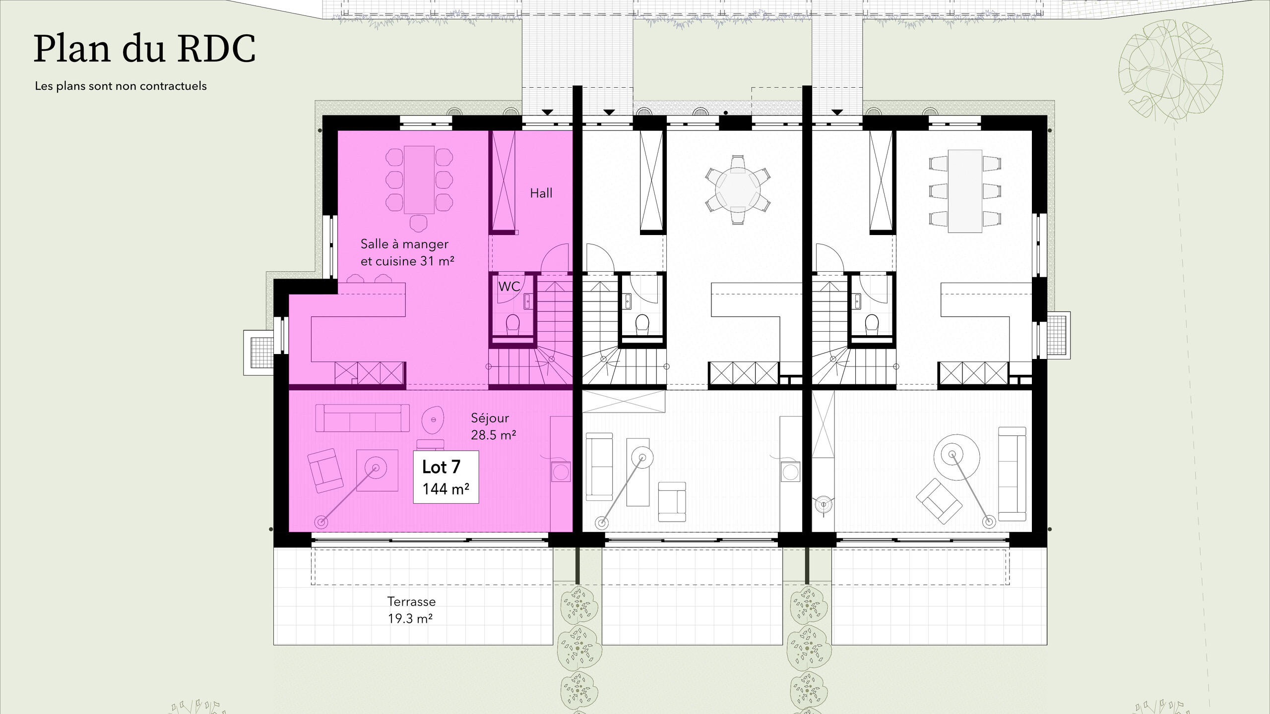
144 m²
144 m²
CHF 920'000.-
CHF 6'389.-/m²
Route d'Essert 57, 1724 Le Mouret
Printemps 2027
Magnifique Villa en bois avec vue sur les Préalpes
Cette jolie villa contiguë en ossature bois de 6 pièces et 144 m² habitables se situe sur une parcelle de 288 m². La villa dispose d’une terrasse de 19,3 m², idéale pour profiter de l'extérieur. Avec un joli jardin, ce bien combine confort, espace et praticité. Il offre un cadre de vie agréable ! À 10 min de l'autoroute et à 15 min de Fribourg. CONFORT Environnement calme Construction en ossature bois Dégagement sur la campagne Vue sur les Préalpes fribourgeoises Une belle terrasse de 19,3 m2 sans vis-à-vis Grande baie vitrée Spacieux et lumineux Chauffage au sol par pompe à chaleur Sols, sanitaires et cuisine : choix au gré du preneur Une place de parc couverte à CHF 15'000.- en sus Une place de parc non-couverte à CHF 10'000.- en sus Disponibilité : Printemps 2027 ACCÈS À 10 min de l'autoroute À 15 min de Fribourg À 20 min de Bulle À 35 min de Vevey Transports publics À 10 min à pied du bus REZ-DE-CHAUSSÉE Un hall d'entrée...
Maison individuelle
5 Pièces
5 Pièces
~ 190 m²
~ 190 m²
CHF 1'775'000.-
CHF 9'342.-/m²
CH, 1724 Le Mouret
A convenir
EN EXCLUSIVITE - Une propriété d’architecte au charme intemporel
EXCLUSIVITE SWITZERLAND SOTHEBY'S INTERNATIONAL REALTY Nichée dans un quartier résidentiel paisible du Mouret, cette élégante maison d’architecte séduit par son caractère unique et son cadre idyllique. Elle offre une atmosphère rare, à la fois intime et ouverte sur la nature, avec une superbe vue dégagée sur les montagnes et un ensoleillement optimal tout au long de la journée. Atypique, raffinée et parfaitement entretenue, cette propriété de standing a bénéficié de rénovations soignées au fil du temps, lui conférant une allure résolument contemporaine tout en préservant son âme architecturale. Une adresse rare, à deux pas de l’école, où confort, esthétisme et qualité de vie s’unissent avec harmonie. Grande parcelle de 1'441 m2 Surface habitable d'environ 190 m2 3 chambres à coucher 2 salles de bains/douche Belle piscine et très beau jardin Magnifique vue dégagée sur la nature et les montagnes Habitation particulièrement économe en...
Maison individuelle
6.5 Pièces
6.5 Pièces
~ 152.5 m²
~ 152.5 m²
CHF 1'350'000.-
CHF 8'852.-/m²
Impasse du Montsibolo 26, 1724 Le Mouret
Immédiatement
Villa contemporaine 6.5 pièces avec appartement indépendant loué
Vivre dans une villa tout en bénéficiant d’un revenu locatif mensuel de CHF 1'300.– déjà sécurisé! Grâce à l’appartement indépendant actuellement loué, cette propriété bénéficie d’un revenu locatif immédiat permettant de réduire significativement l’effort financier mensuel. Située dans un quartier résidentiel calme, familial et en impasse, cette villa contemporaine de 6,5 pièces, construite en 2015 et parfaitement entretenue, offre un cadre de vie favorable, où se rencontrent sérénité, nature et confort moderne. La vue dégagée sur la campagne et les montagnes renforce cette impression de tranquillité et de qualité de vie, dans un environnement paisible et verdoyant. Dès l’entrée, on ressent immédiatement une atmosphère chaleureuse et apaisante. Les volumes sont généreux, les espaces respirent, la lumière naturelle est omniprésente, et l’ensemble dégage une vraie sensation de bien-être. La qualité des finitions, les matériaux...
Chalet
5.5 Pièces
5.5 Pièces
188 m²
188 m²
CHF 775'000.-
CHF 4'122.-/m²
Le Mouret, 1724 Le Mouret
Immédiatement
Charmant chalet avec grande parcelle et joli potentiel
Situé au c?ur du village, ce chalet individuel de caractère, construit en 1943, offre une belle opportunité pour les amoureux d'authenticité et de nature. Érigé sur trois niveaux, il est actuellement composé de deux appartements et bénéficie d'un grand terrain de 1'741 m², réparti sur deux parcelles. Un atout rare : une r ivière traverse le terrain, ajoutant un cadre bucolique à la propriété. De plus, le chalet dispose d'un accès à une source naturelle via le sous-sol. Ce bien est habitable en l'état, mais nécessitera des travaux de rénovation pour être remis au goût du jour. Son potentiel de développement est important, offrant diverses possibilités d'aménagement ou d'agrandissement. Idéalement situé à proximité immédiate de toutes les commodités, ce bien constitue une opportunité rare pour une résidence principale ou un projet immobilier. Contactez-nous pour une visite. Adresse exacte disponible après inscription...







































































