Wohnung
4.5 Zimmer
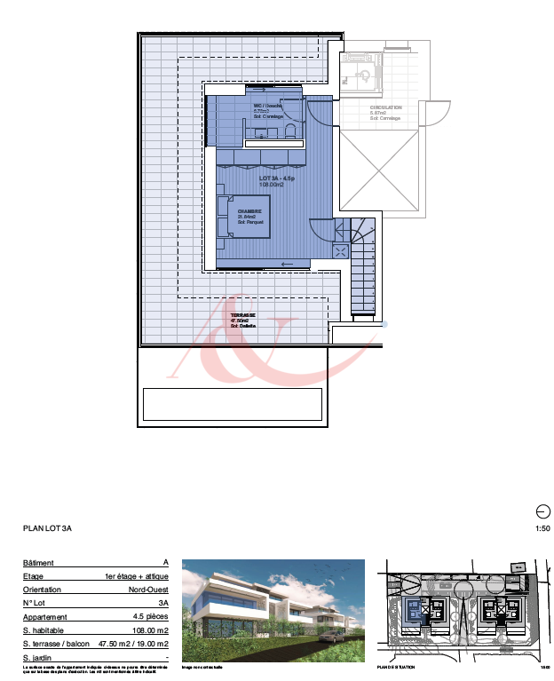
4.5 Zimmer
130 m²
130 m²
CHF 3'950.-/Monat
1071 Chexbres
1. Stock
Nach Absprache
NEU - 4,5 aussergewöhnliche Zimmer in Chexbres
Im Herzen des charmanten Dorfes Chexbres gelegen, bietet dieses 4,5-Zimmer-Duplex-Apartment mit 130 m² Wohnfläche, welches sich im 1. Stock eines kleinen, neuen 4-Wohnung-Gebäudes befindet, modernen Komfort und viel Tageslicht. Die gut durchdachte Raumaufteilung und die hochwertigen Materialien schaffen eine warme und elegante Atmosphäre, die durch den freien Blick auf den Genfer See noch verstärkt wird Die Wohnung ist wie folgt aufgeteilt: - grosser Wohnraum mit komplett ausgestatteter Küche und Kamin - drei Schlafzimmer mit Wandschränken - Badezimmer mit Waschtischkolonne - zwei Duschräume - Terrasse mit Aussicht Zögern Sie nicht, uns zu kontaktieren, um einen Besichtigungstermin zu vereinbaren. Miete inkl. Nebenkosten: 4 030 CHF Au coeur du charmant village de Chexbres, ce 4.5 pièces duplex de 130 m², situé au 1er étage d'un petit immeuble neuf de quatre logements, conjugue confort moderne et luminosité naturelle. Ses espaces bien agencés et ses matériaux de...



























































































