Büro
434 m²
434 m²
CHF 690.-/m²/Jahr
Place du Molard 6, 1204 Genève
4. Stock
Nach Absprache
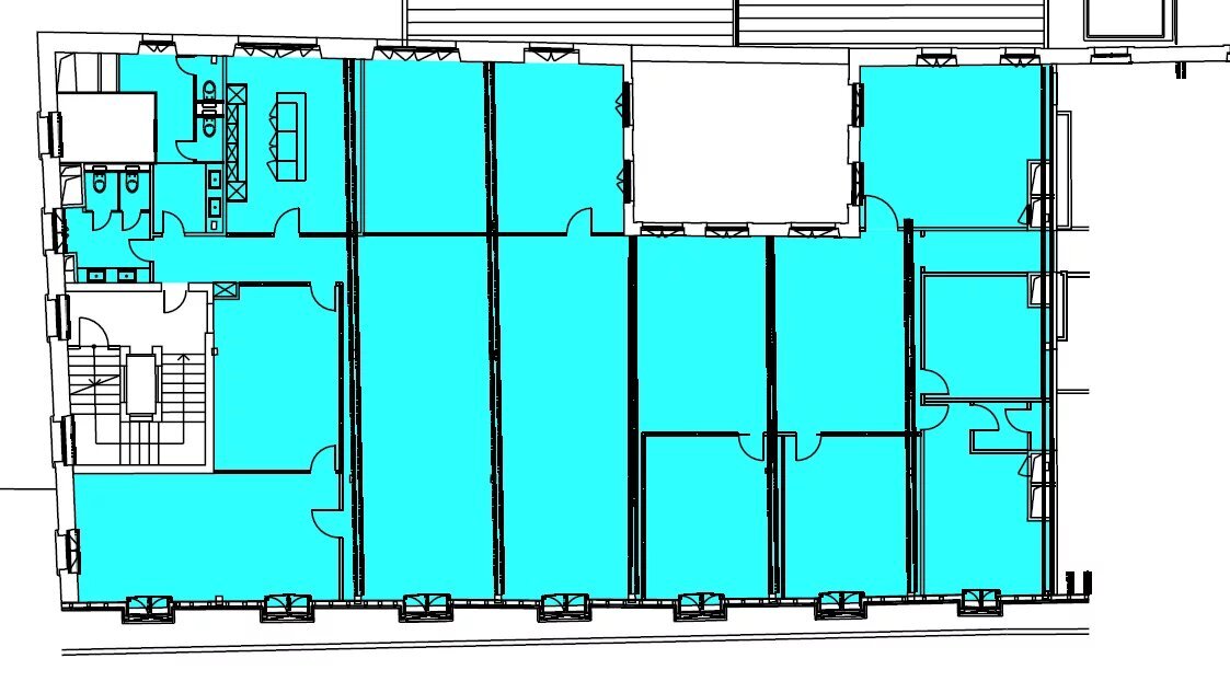
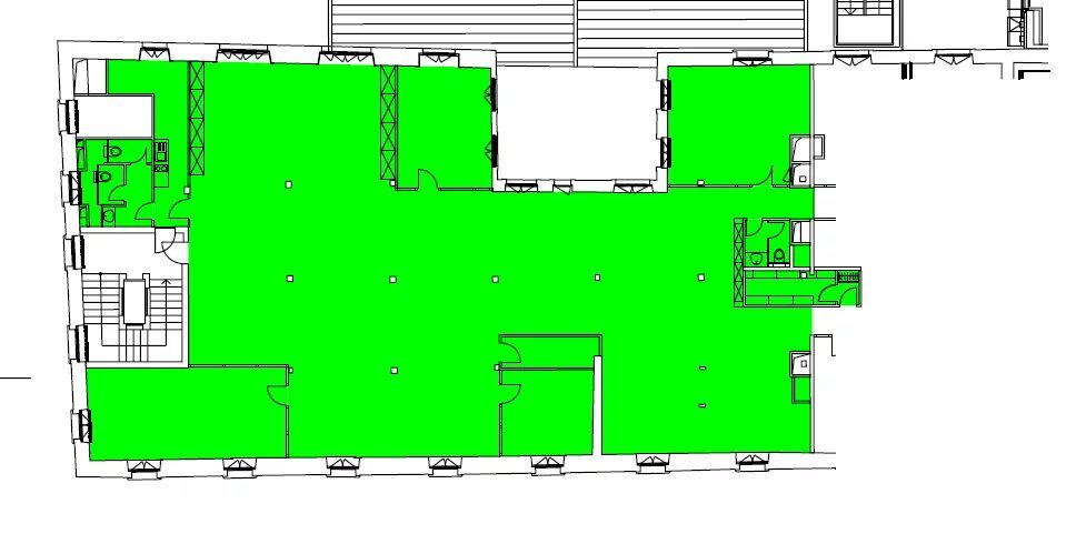
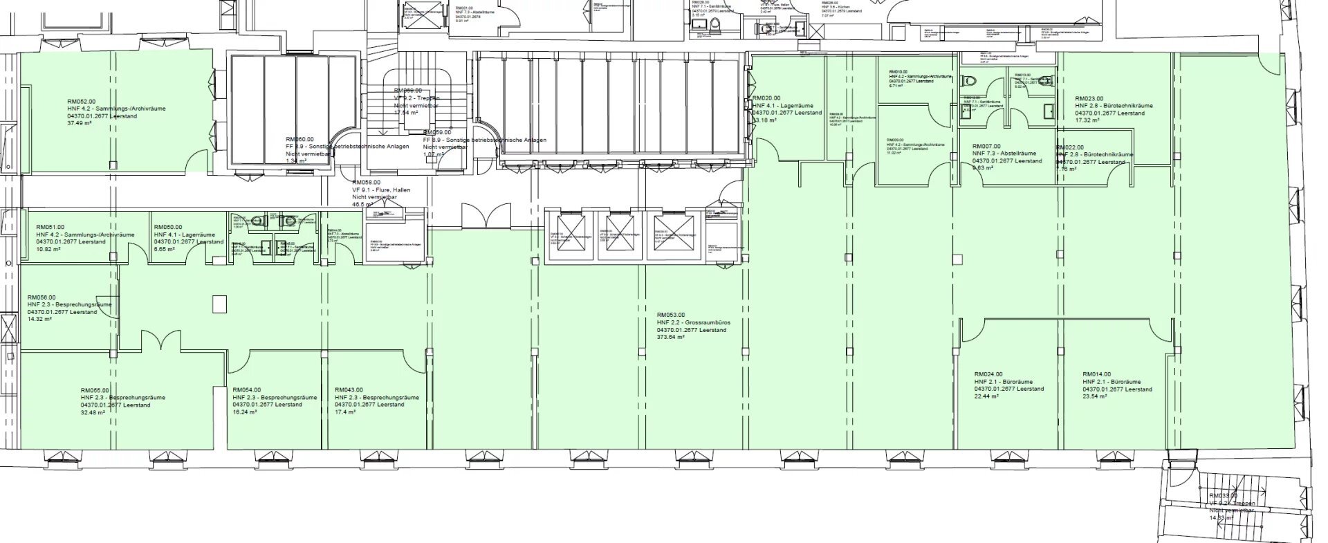
Büros an der Place du Molard
Die vollständig anpassbaren Büroflächen befinden sich im Herzen der Innenstadt, an der prestigeträchtigen Place du Molard und bieten einen hervorragenden Arbeitsplatz in einem markanten Gebäude, nur wenige Schritte vom See, den Geschäften, den öffentlichen Verkehrsmitteln und der Altstadt entfernt. Beschreibung der Fläche: – 1 grosser, leicht unterteilbarer Open Space – 6 bestehende, miteinander verbundene Büros mit Trennwänden – 4 WC für Männer und Frauen – 1 Küchenzeile – Sichernes Gebäude – Moderne Liftanlage Mietpreis CHF 690.-/m²/Jahr + Nebenkosten CHF 80.-/m²/Jahr Kontakt für Besichtigungen: Gaëtan BELLEC +41 79 721 16 97 +41 22 319 89 22 commercial@comptoir-immo.ch Situés au coeur de l'hyper-centre, au prestigieux emplacement de la Place du Molard, ces plateaux entièrement modulables offrent un cadre de travail d'exception, au sein d'un immeuble emblématique, à deux pas du lac, des commerces, des transports et de...





































































































