Lugano 4.5-room penthouse for sale with terrace, garden and view
Rooms4.5
Living area190 m²
Floor7th floor
Object PriceCHF 3,981,000.-
AvailabilityImmediate
Localisation
Via Tesserete 64, 6900 LuganoCharacteristics
Reference
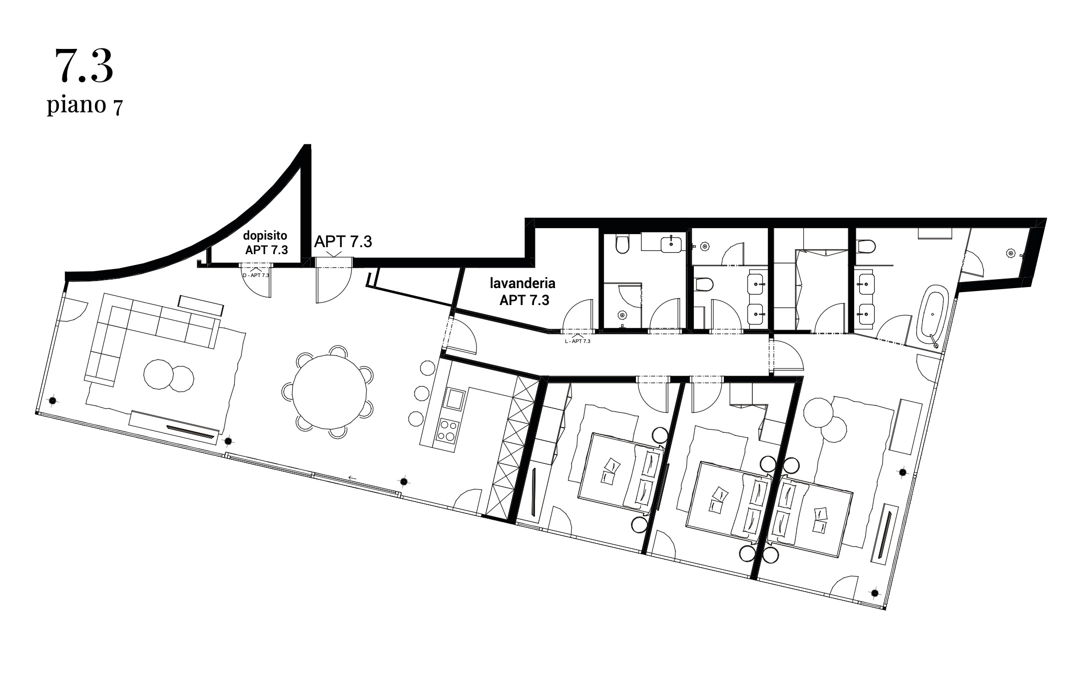
Apt. 7.3
Availability
Immediate
Second home
Non authorized
Bathrooms
3
Year of construction
2024
Rooms
4.5
Bedrooms
3
Floor
7th floor
Cellar surface
15 m²
Living area
190 m²
Terrace surface
171 m²
Total surface
288 m²
Description
Lugano - Residenza Mirador | Elegant 4.5-room penthouse with large panoramic terrace
Inside the prestigious Residenza Mirador, at Via Tesserete 66 in Lugano, we offer for sale a refined 4.5-room penthouse located on the 7th floor of a modern residential complex surrounded by greenery.
The residence, developed on several terraced levels, enjoys a privileged location that combines the convenience of city services with the tranquility and beauty of the surrounding natural environment.
The Mirador Residence offers exclusive services of high standing, including indoor and outdoor swimming pools, SPA area and a modern gymnasium, ensuring a high quality lifestyle.
Apartment 7.3 is a penthouse and is one of the most prestigious properties in the Mirador Residence. The view of the lake is truly magnificent and striking. The living area is the heart of the property thanks to the large living room and the designer kitchen. The sleeping area consists of three bedrooms and the three respective bathrooms. A very large terrace, partially covered, offers the possibility to make the most of a spectacular outdoor space in which to relax with family or guests.
The private wine cellar is located on the same floor and is a significant plus for having additional space at your disposal.
Parking spaces in the garage available at a price of CHF 65,000 each.
An ideal solution for those who want to live Lugano in an exclusive context, with comfort, privacy and panoramic views
Inside the prestigious Residenza Mirador, at Via Tesserete 66 in Lugano, we offer for sale a refined 4.5-room penthouse located on the 7th floor of a modern residential complex surrounded by greenery.
The residence, developed on several terraced levels, enjoys a privileged location that combines the convenience of city services with the tranquility and beauty of the surrounding natural environment.
The Mirador Residence offers exclusive services of high standing, including indoor and outdoor swimming pools, SPA area and a modern gymnasium, ensuring a high quality lifestyle.
Apartment 7.3 is a penthouse and is one of the most prestigious properties in the Mirador Residence. The view of the lake is truly magnificent and striking. The living area is the heart of the property thanks to the large living room and the designer kitchen. The sleeping area consists of three bedrooms and the three respective bathrooms. A very large terrace, partially covered, offers the possibility to make the most of a spectacular outdoor space in which to relax with family or guests.
The private wine cellar is located on the same floor and is a significant plus for having additional space at your disposal.
Parking spaces in the garage available at a price of CHF 65,000 each.
An ideal solution for those who want to live Lugano in an exclusive context, with comfort, privacy and panoramic views

















