Firm/medical offices
2 Rooms
Terrassenweg , 33, 3360 Herzogenbuchsee
Immediate
This bright and versatile space offers the ideal setting for an office, a practice or a quiet service area. Thanks to the well-thought-out room layout and the pleasant atmosphere, it is suitable for both concentrated work and professional customer reception. Generous windows provide plenty of natural light and create a friendly, motivating working environment. The space can be individually designed and adapted to different usage concepts. Whether it is a single office, a practice room, a counseling center or a studio. The quiet location supports focused work, while the good accessibility makes the location attractive for customer appointments. A modern infrastructure rounds off the offer and enables a straightforward start without major adaptation work. A space that exudes professionalism, creates trust and at the same time offers enough flexibility for your personal or business needs. So no wishes are left unfulfilled. Take advantage of this PREMIUM HOMES offer and convince yourself...
Firm/medical offices
CHF 3,250.-/month + ch.
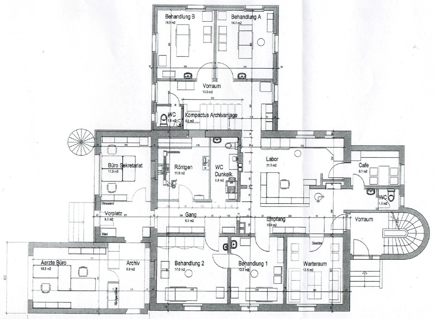
Bernstrasse, 28, 3360 Herzogenbuchsee
Ground floor
Immediate
Central commercial/practice premises of 220 m²
We are now renting out commercial premises of 220 m² (with adjoining rooms) in a central location right next to the main train station for medical or commercial use, including parking spaces, by arrangement or immediately. 8 rooms and a spacious reception area are ideal for: Joint practice, physiotherapy, complementary medicine Law firm, consulting office or other services Excellent accessibility, just a 2-minute walk from the train station. Public transport and catering facilities are therefore in the immediate vicinity. The premises are currently vacant and unfurnished. Interested? We would be happy to provide you with further information and arrange a viewing. An zentraler Lage direkt neben dem Hauptbahnhof vermieten wir ab sofort oder nach Vereinbarung Gewerberäumlichkeiten à 220 m² (mit Nebenräumen) für medizinische oder gewerbliche Nutzung inkl. Parkplätzen. 8 Zimmer und ein grosszügiger Empfang eignen sich ideal für: Gemeinschaftspraxis, Physiotherapie...
Trade
3 Rooms
3 Rooms
CHF 2,600.-/month + ch.
Auf Anfrage, 3360 Herzogenbuchsee
To agree
MULTIFACETED WITH GREAT POTENTIAL
Spacious and bright retail space with large shop window and direct customer access. The area is open-plan and equipped with shelves, which can be removed if required. There is also a separate office, another room and a WC. The premises can be used in a variety of ways and can be adapted as required. An additional basement room of 90 m² can be rented on request. This BETTERHOMES offer has the following advantages: - Large shop window front - Shelves can be removed if required - Separate office space - WC available - 2 parking spaces included - Additional 90 m² on request - and much more ... Interested? Contact us for a viewing without obligation, also online viewing possible! Not found what you are looking for? Over 2,000 more offers at: www.betterhomes.ch – the real estate broker® Want to market your own property? Benefit from our expertise: https://www.betterhomes.ch/de/profitieren Want to have your property valued ? Find out its value with our free valuation, immediately and...
Search near Herzogenbuchsee
Commercial spaces for rent in Langenthal
Commercial spaces for rent in Gümligen
Commercial spaces for rent in Burgdorf























