Bureau
Prix sur demande
Av. de Beauregard 11-13, 1700 Fribourg
4ème étage
A convenir
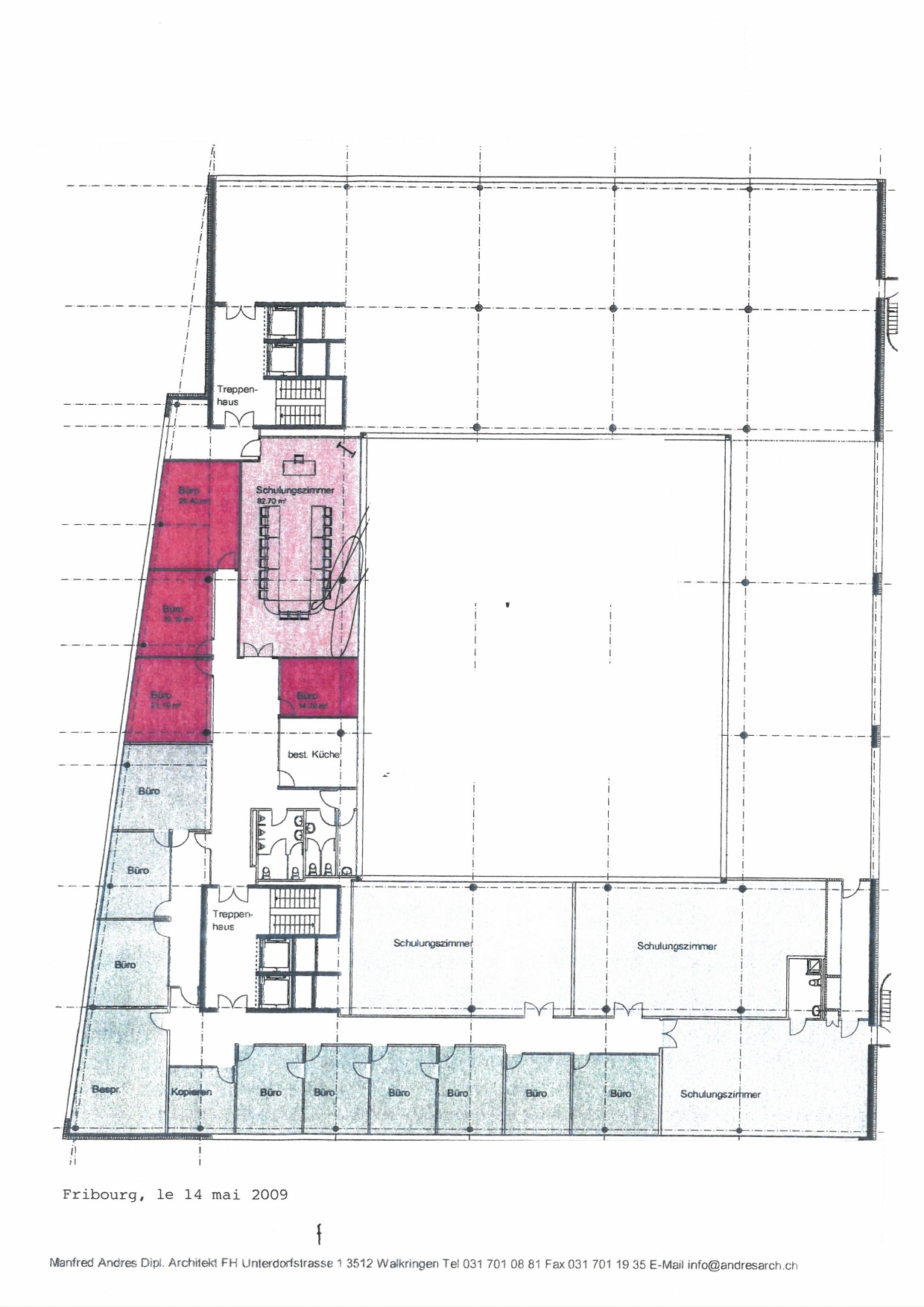
SURFACE ADMINISTRATIVE DE 390 M² ENV. AU 4ÈME ETAGE - AILE SUD-OUEST
Locaux lumineux situés dans un immeuble de qualité. A cinq minutes à pied des gares routière et ferroviaire. Hauteur : 2,6 m sous plafond. Distribution selon plan (fond de l'aile sud-ouest remanié - partie en rouge sur plan scanné). Parking public d une capacité 290 places dans le bâtiment (entrée sur av. Jean-Gambach). Places de parc disponibles sur abonnement à l attention des employés. Distribution selon plan. Etat des locaux : à discuter. Bureaux lumineux ventilés et équipés d’installations de refroidissement de l’air, WC, etc. Nombreuses autres sociétés implantées dans le complexe immobilier. Dépôts disponibles. DISPONIBILITE 1er janvier 2026 si locaux remis en l'état, délai d'attente correspondant au temps d'exécution des travaux, le cas échéant. SITUATION • À 5 minutes de la gare CFF. • À 7 minutes des entrées et sorties d’autoroute (à 3,8 km de l'A12). • À 1 h de Lausanne (à 71,4 km de la gare de Lausanne). • À 35 minutes de Berne...



































































































