Appartement PPE
CHF 1'020'000.-
CHF 7'500.-/m²
Rue du Village 13, 1424 Champagne
Spacieux appartement 4.5 pièces avec loggia à Champagne
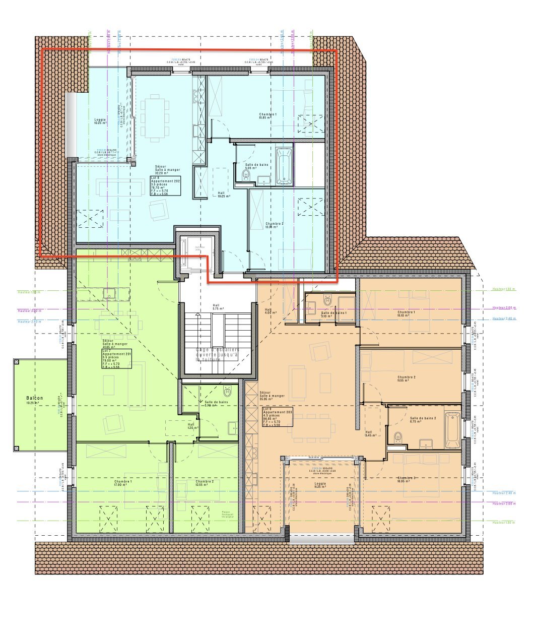
Spacieux appartement 4.5 pièces avec loggia à Champagne: Niché au cœur du charmant village de Champagne, à quelques minutes d’Yverdon-les-Bains, ce vaste appartement de 4.5 pièces, situé au 1er étage d’une petite PPE érigée en 2005, séduit par ses volumes généreux, son excellent état d’entretien et son atmosphère chaleureuse. Découvrez un appartement spacieux et lumineux: Développant une surface pondérée d’environ 140 m², ce bien profite d’une configuration fonctionnelle et agréable répartie sur deux demi-niveaux, permettant une séparation claire entre l’espace jour et la partie nuit. L’espace de vie s’articule autour d’un vaste séjour prolongé par une loggia couverte. La cuisine ouverte, parfaitement équipée, bénéficie d’un grand garde-manger attenant, offrant un confort de rangement rare. La partie nuit se compose de trois chambres à coucher, dont une avec dressing, ainsi que de deux salles de bains : l’une avec douche et WC...