Officina
Proprietà: 11 risultati
87 m²
ZI En Budron H9, 1018 Le Mont-sur-Lausanne
Da convenire
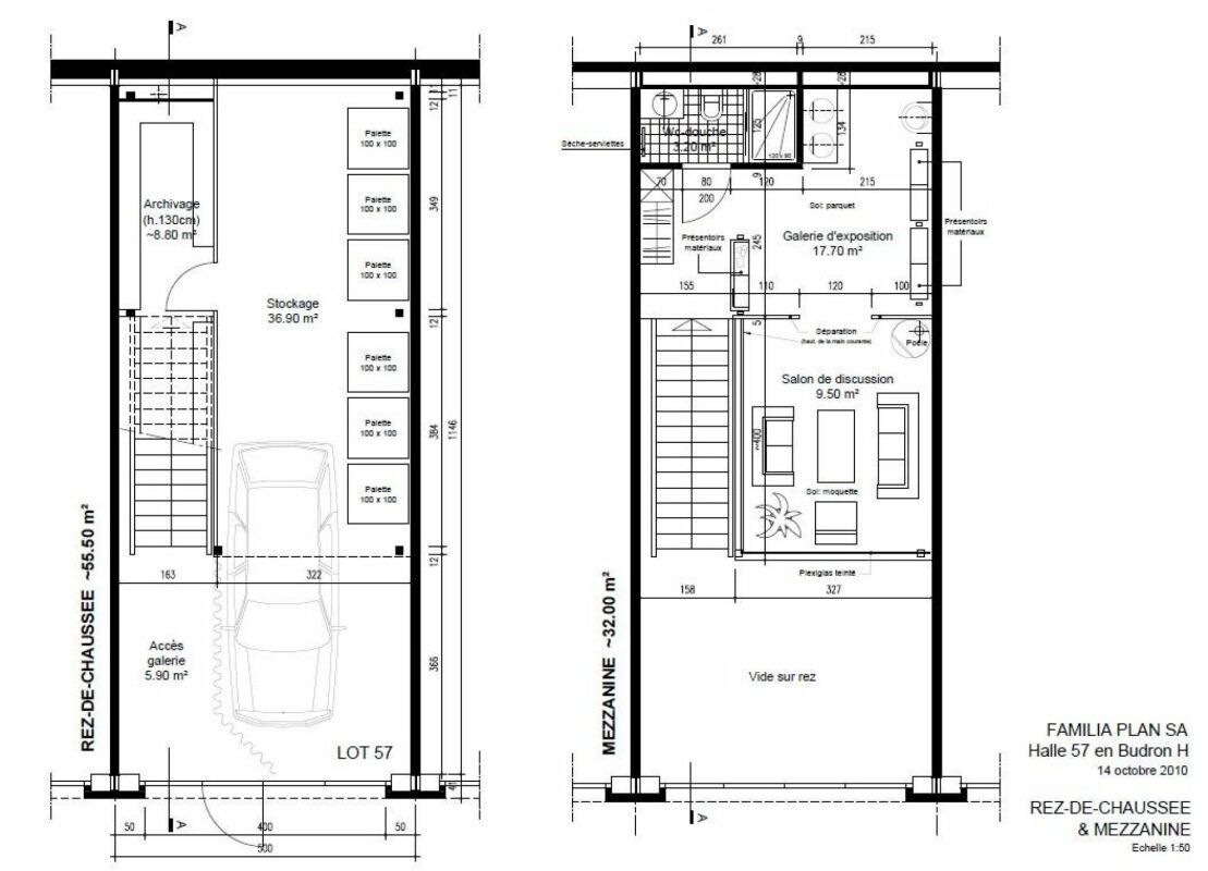
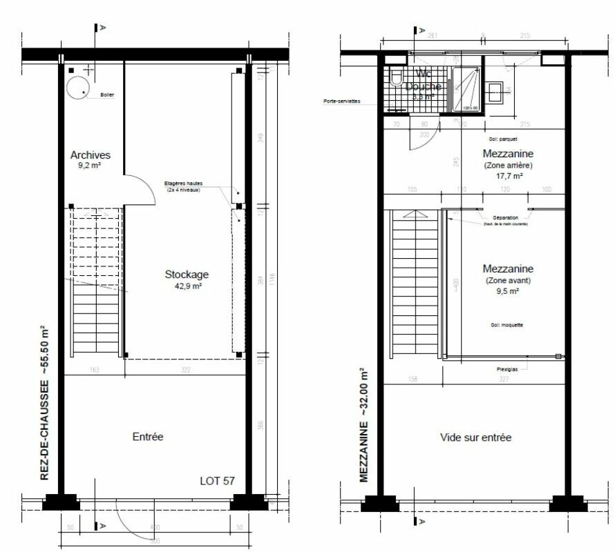
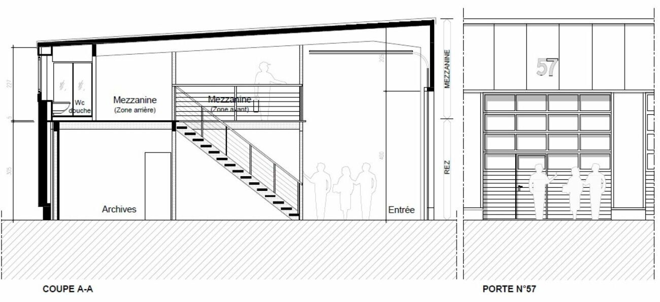
Halle artigianale in quartiere vicino autostrada Da affittare subito, capannone artigianale con soppalco, situato in posizione strategica in una zona industriale dinamica, facilmente accessibile e vicina alle autostrade. Configurazione ideale per attività artigianale, magazzino, laboratorio o piccola attività amministrativa. Indirizzo : ZI En Budron H9, 1052 Le Mont-sur-Lausanne Disponibile dal 1° maggio 2026 Superficie totale: 87.5 m² (Piano terra / a livello del suolo: 55.5 m², Mezzanino (1° piano): 32.0 m²) Stato: Affittato in loco, con gli arredi esistenti del locatore. Condizioni finanziarie: Affitto mensile di CHF 1’490.- + spese personali (elettricità, riscaldamento, acqua, internet, ecc.) in aggiunta. Per informazioni e visite, si prega di contattarci al numero 021 651 20 90. Halle artisanale dans quartier proche autorouteÀ louer de suite, halle artisanale avec mezzanine, située stratégiquement dans une zone industrielle dynamique, facilement accessible et...
Officina
23 m²
23 m²
Prezzo su richiesta
ZI En Budron H7-9, 1052 Le Mont-sur-Lausanne
1° piano
Da convenire
Commerciale a Le Mont-sur-Lausanne
Sottolocazione – Superficie di 23 m2 locale/artigianato/ufficio In affitto, una parte di una street-box di 23 m², situata al 1° piano di un edificio artigianale + accesso alle parti comuni al piano terra cucina e WC. Ideale per attività artigianale/ufficio o piccolo deposito. Caratteristiche: Superficie luminosa e funzionale Accesso tramite le scale Cucina e servizi igienici in comune Disponibilità: 01.06.2026 o per data da concordare Affitto mensile: CHF 750.-- TTC Siete interessati? Non esitate a contattarci per maggiori informazioni o per organizzare una visita! Sous-location - Surface de 23 m2 local/artisanat/bureauA sous-louer, une partie d'une street-box d'une surface de 23 m², située au 1er étage d'une halle artisanale + accès aux parties communes du rez-de-chaussée cuisine et WC. Idéale pour une activité artisanale/bureau ou petit dépôt. Caractéristiques : Surface lumineuse et fonctionnelleAccès par les escaliersCoin cuisine et WC en...
Appartamento
3.5 Locali
3.5 Locali
100 m²
100 m²
CHF 985'000.-
CHF 9'850.-/m²
1422 Grandson
Da convenire
Ampio appartamento di 3,5 stanze a Grandson con magnifica vista sul lago
5 minuti da Yverdon - Vista magnifica sul lago per questo grande appartamento di 3,5 stanze con 100 m2 di spazio abitativo Situato in un ambiente privilegiato, questo luminoso appartamento occupa l'intero piano della soffitta e beneficia di volumi splendidi e di una vista mozzafiato sul lago. Distribuzione: Atrio d'ingresso con guardaroba Cucina aperta con zona pranzo e accesso diretto al balcone Soggiorno spazioso con accesso al balcone Suite padronale con camerino e bagno privato (vasca bagnata, lavandino, WC) 1 camera da letto aggiuntiva Bagno con doccia, lavandino, WC, inclusa colonna per il lavaggio (possibilità di trasformazione in ufficio) 1 cantina nel seminterrato Exteriori: Balcone con magnifica vista libera sul lago Extra spazio auto esterno Punti salienti: Soffitta con grandi volumi Finiture molto belle Eccezionale luminosità Lavoro in corso (nuovo progetto) À 5 minutes d'Yverdon - Magnifique vu e sur le lac pour ce grand 3,5 pièces de 100 m2 habitable...
Appartamento
3.5 Locali
3.5 Locali
100 m²
100 m²
CHF 985'000.-
CHF 9'850.-/m²
Les Bains, 1400 Yverdon-les-Bains
Da convenire
Ampio appartamento di 3,5 stanze con magnifica vista sul lago
A 5 minuti da Yverdon – Splendido appartamento di 3,5 locali con vista lago 100 m2 abitabili Situato in un ambiente privilegiato, questo luminoso appartamento occupa interamente il piano mansardato e gode di ampi spazi e di una vista mozzafiato sul lago. Distribuzione : Ingresso con armadio guardaroba Cucina aperta con zona pranzo e accesso diretto al balcone Ampio soggiorno con accesso al balcone Camera da letto principale con cabina armadio e bagno privato (vasca, lavabo, WC) 1 camera da letto aggiuntiva Bagno con doccia, lavabo, WC, colonna per il lavaggio (possibilità di trasformarlo in ufficio) 1 cantina al piano interrato Esteri: Balcone con splendida vista aperta sul lago Posto auto esterno a pagamento Punti di forza: Soffitte con grandi volumi Molto belle finiture Luminosità eccezionale Cantiere in corso (progetto nuovo) À 5 minutes d'Yverdon - Magnifique appartement de 3,5 pièces avec vue sur le lac 100 m2 habitable Situé dans un environnement privilégié, cet...
Appartamento
4.5 Locali
4.5 Locali
108 m²
108 m²
CHF 1'525'000.-
CHF 14'120.-/m²
ch. des Chalets 5, 1110 Morges
1° piano
Da convenire
Morges Lotto 3 4,5 stanze
Bellissimo appartamento situato al 1° piano, che occupa l’intero piano, composto da: Ingresso con armadio guardaroba Ampio soggiorno con accesso diretto ad un balcone di 19 m² Cucina aperta Tre camere da letto, di cui una suite padronale con bagno privato (doccia, lavabo, WC) e accesso al balcone Bagno con doccia, WC e lavabo Seminterrato: cantina di circa 14 m² Possibilità di acquistare posti auto in seminterrato a pagamento. Magnifique appartement situé au 1er étage, occupant l'ensemble de l'étage, se composant comme suit : Entrée avec armoire vestiaire Spacieux séjour avec accès direct à un balcon de 19 m² Cuisine ouverte Trois chambres, dont une suite parentale avec salle d'eau privative (douche, lavabo, WC) et accès au balcon Salle d'eau avec douche, WC et lavabo Sous-sol : cave d'environ 14 m² Possibilité d'acquérir des places de parc en sous-sol en supplément.
Appartamento
3.5 Locali
3.5 Locali
110 m²
110 m²
CHF 1'490'000.-
CHF 13'545.-/m²
Chemin des Chalets 5, 1110 Morges
Da convenire
Morges Lotto 2
Bellissimo appartamento con giardino privato Ottimamente posizionato questo appartamento al piano rialzato con giardino privato si compone come segue: Ingresso con armadio guardaroba, cucina aperta con zona pranzo, soggiorno con accesso su balcone e giardino 2 Camere di cui una con bagno, doccia, lavabo e wc Bagno con doccia, wc, lavabo Piano inferiore Cantina di 10.5 m2 Esterni Giardino privato 110 m2 Possibilità di parcheggio sotterraneo aggiuntivo Bel appartement avec jardin privéIdéalement placé cet appartement au rez-supérieur avec jardin privé ce compose comme suit: Entrée avec armoire vestiaire, cuisine ouverte avec espace repas, séjour accès sur un balcon et jardin 2 Chambres dont une avec salle d'eau, douche, lavabo et wc Salle d'eau avec douche, wc, lavabo Rez inférieur Cave de 10.5 m2 Extérieurs Jardin privatif 110 m2 Possibillité de pace de parc en sous-sol en sus
Appartamento
3.5 Locali
3.5 Locali
94 m²
94 m²
CHF 1'450'000.-
CHF 15'426.-/m²
Chemin des Chalets 5, 1110 Morges
1° piano
Da convenire
Morges Lotto 5
Escape sul lago Bellissimo appartamento al Combes con loggia e vista sul lago, questo appartamento si compone come segue: Ingresso con armadio guardaroba, Soggiorno con accesso diretto al balcone (5.6 m2) Cucina aperta con zona pranzo e accesso alla loggia (7.8 m2) 2 Camere di cui una con bagno privato, doccia, lavandino e wc Bagno con doccia, wc, lavandino Seminterrato Cantina di ~7.0 m2 Possibilità di posti auto sotterranei aggiuntivi Echappées sur le lacMagnifique appartement au Combes avec loggia et échapées sur le Lac, cet appartement ce compose comme suit: Entrée avec armoire vestiaire, Séjour avec accès direct sur le balcon (5.6 m2) Cuisine ouverte avec espace repas et accès à la loggia (7.8 m2) 2 Chambres dont une avec salle d'eau privative, douche, lavabo et wc Salle d'eau avec douche, wc, lavabo Sous-sol Cave de ~7.0 m2 Possibilité de places de parc en sous-sol en sus
Appartamento
3.5 Locali
3.5 Locali
80 m²
80 m²
CHF 1'190'000.-
CHF 14'875.-/m²
Chemin des Chalets 5, 1110 Morges
1° piano
Da convenire
Morges Lotto 3
Bellissimo appartamento situato al 1° piano, composto da: Ingresso con armadio guardaroba Ampio soggiorno con accesso diretto a un balcone di 19 m² Cucina aperta Due camere da letto Bagno con doccia, WC e lavandino Seminterrato: cantina di circa 14 m² Possibilità di acquistare posti auto sotterranei a pagamento. Magnifique appartement situé au 1er étage, se composant comme suit : Entrée avec armoire vestiaire Spacieux séjour avec accès direct à un balcon de 19 m² Cuisine ouverte deux chambres Salle d'eau avec douche, WC et lavabo Sous-sol : cave d'environ 14 m² Possibilité d'acquérir des places de parc en sous-sol en supplément.
Appartamento
80 m²
80 m²
CHF 1'100'000.-
CHF 13'750.-/m²
Chemin des Chalets 5, 1110 Morges
Da convenire
Morges Lotto 1
Grande 2,5 locali + disponibile e giardino privato – Idealmente situato Questo bell’appartamento di 2,5 locali più disponibile per un totale di 71 m2, gode di una posizione privilegiata e di un piacevole spazio esterno privato. Distribuzione: Ingresso con armadio guardaroba Cucina aperta con zona pranzo e soggiorno, con accesso diretto alla terrazza e al giardino Camera con accesso alla terrazza e al giardino Spazio ufficio (o disponibile a seconda della configurazione desiderata) Bagno con doccia, lavandino e WC Annessi: Cantina di circa 7,5 mq al piano seminterrato Esteri: Giardino privato con terrazza di circa 141 m², accessibile dal soggiorno Varietà: Posto auto sotterraneo a pagamento Grand 2,5 pièces + disponible et jardin privatif - Idéalement situé Ce bel appartement de 2,5 pièces plus disponible totalisant 71 m2, bénéficie d'un emplacement privilégié ainsi que d'un agréable espace extérieur privatif. Distribution : Hall d'entrée avec...
Villa
5.5 Locali
5.5 Locali
208 m²
208 m²
CHF 1'690'000.-
CHF 8'125.-/m²
1066 Epalinges
Da convenire
A 10 minuti dalla metropolitana, Savigny nel centro del villaggio
Villa bifamiliare Situate a 10 minuti dalla metropolitana, nel centro del villaggio di Savigny, queste ville molto luminose godono di una posizione privilegiata, a pochi passi da negozi, trasporti e scuole. Costruite secondo standard tradizionali e con finiture meticolose, offrono comfort moderno con impianti completamente indipendenti di riscaldamento, acqua ed elettricità. Costruzione tradizionale con finiture di altissima qualità. Riscaldamento, acqua ed elettricità completamente indipendenti. La villa è disposta come segue: Al piano terra: un atrio d'ingresso e un corridoio con armadietti, un bagno con doccia, una cucina arredata aperta alla zona pranzo e il soggiorno con accesso diretto alla terrazza e al giardino. Al piano superiore: un corridoio che distribuisce 3 bellissime camere da letto, 2 delle quali si aprono sul balcone e su un bagno. In soffitta: una splendida superficie con un ufficio e 2 grandi stanze disponibili. Il seminterrato: è completamente scavato e...
Villetta singola
5.5 Locali
5.5 Locali
208 m²
208 m²
CHF 1'690'000.-
CHF 8'125.-/m²
1073 Savigny
Da convenire
Villa bifamiliare di Savigny
Villa semi-indipendente Situate nel cuore del villaggio, queste ville molto luminose godono di una posizione privilegiata, a pochi passi dai negozi, dai trasporti e dalle scuole. Costruite secondo gli standard tradizionali e dotate di finiture di pregio, offrono un comfort moderno con impianti totalmente indipendenti per riscaldamento, acqua ed elettricità. La villa è disposta come segue: Al piano terra: un ingresso e disimpegno con armadi, un bagno con doccia, una cucina abitabile aperta sul soggiorno e sul pranzo con accesso diretto alla terrazza e al giardino. Al piano superiore: un disimpegno che distribuisce 3 belle camere di cui 2 che si affacciano sul balcone e un bagno. Nei sottotetti: una bella superficie con un ufficio e 2 grandi disponibili. Il seminterrato: è completamente scavato e dispone di una lavanderia/cabina di riscaldamento (PAC), 1 o 2 cantine a seconda della disposizione e un grande spazio disponibile (fitness/sala giochi, ecc.) All’esterno: un giardino...
Ultimi post del blog
21 maggio 2026
Immobiliare e successione in Svizzera : come anticipare la trasmissione del proprio patrimonio ?
19 maggio 2026
urbanhome.ch entra a far parte di SwissMLS e aumenta ulteriormente la visibilità delle agenzie immobiliari!
18 maggio 2026

































































