Attico
5 Locali
5 Locali
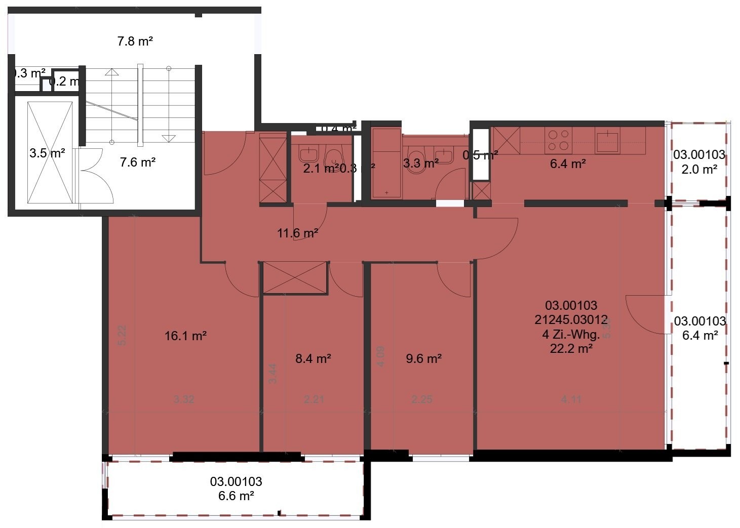
122 m²
122 m²
CHF 890'000.-
CHF 7'295.-/m²
Le Gottau 20-26, 1618 Châtel-St-Denis
5° piano
Da convenire
Superbo attico nuovo alle Rives de la Veveyse
A colpo d’occhio: Magnifico attico di 122 m² al 5° e ultimo piano di un PPE esclusivo Consegna prevista nel 2027 – finiture completamente personalizzabili Grande soggiorno in stile loft con cucina aperta 4 camere, di cui una suite padronale con bagno privato 2 bagni: doccia con colonna di lavaggio + vasca/WC Balcone di 18 m² esposto a sud Ingresso con armadi a muro Cantina privata e lavanderia incluse Posti auto in sotterraneo disponibili in opzione Un interno da immaginare secondo i propri desideri Situato all’ultimo piano di una residenza contemporanea, questo splendido attico traversante seduce per la sua luminosità e i suoi generosi volumi. L’ingresso con armadi a muro conduce ad un ampio soggiorno prolungato da un balcone esposto a sud di 18 m². La cucina aperta crea uno spazio conviviale e armonioso, ideale per ricevere. La sua posizione privilegiata e la personalizzazione delle finiture ne fanno un’opportunità unica. 079 604 85 19 contact@les-rives-veveyse.ch...




















































































































