Ufficio
100 m²
100 m²
CHF 288.-/m²/anno
Rue de la Servette 13, 1201 Genève
Da convenire
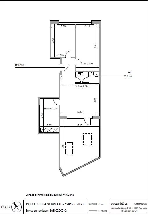
Uffici di 114 m² in posizione ideale
Nel cuore del dinamico quartiere della Servette, questi uffici di 114 m² al 1° piano offrono un ambiente di lavoro piacevole e funzionale, a pochi passi dai trasporti pubblici, dai negozi e dai servizi. Descrizione della superficie: - 1 zona di ricevimento - 2 uffici separati da pareti divisorie - 1 sala conferenze - 1 cucinotto - 1 toilette Contatti per le visite: Sig. Grégoire MARRA +41 22 319 88 17 commercial@comptoir-immo.ch Au coeur du quartier dynamique de la Servette, ces bureaux de 114 m² au 1er étage offrent un cadre de travail agréable et fonctionnel, à proximité immédiate des transports publics, commerces et services. Descriptif de la surface : - 1 zone de réception - 2 bureaux cloisonnés - 1 salle de conférence - 1 kitchenette - 1 toilette Contact pour les visites : M. Grégoire MARRA +41 22 319 88 17 commercial@comptoir-immo.ch




































































































