Casa a schiera
8 Locali
8 Locali
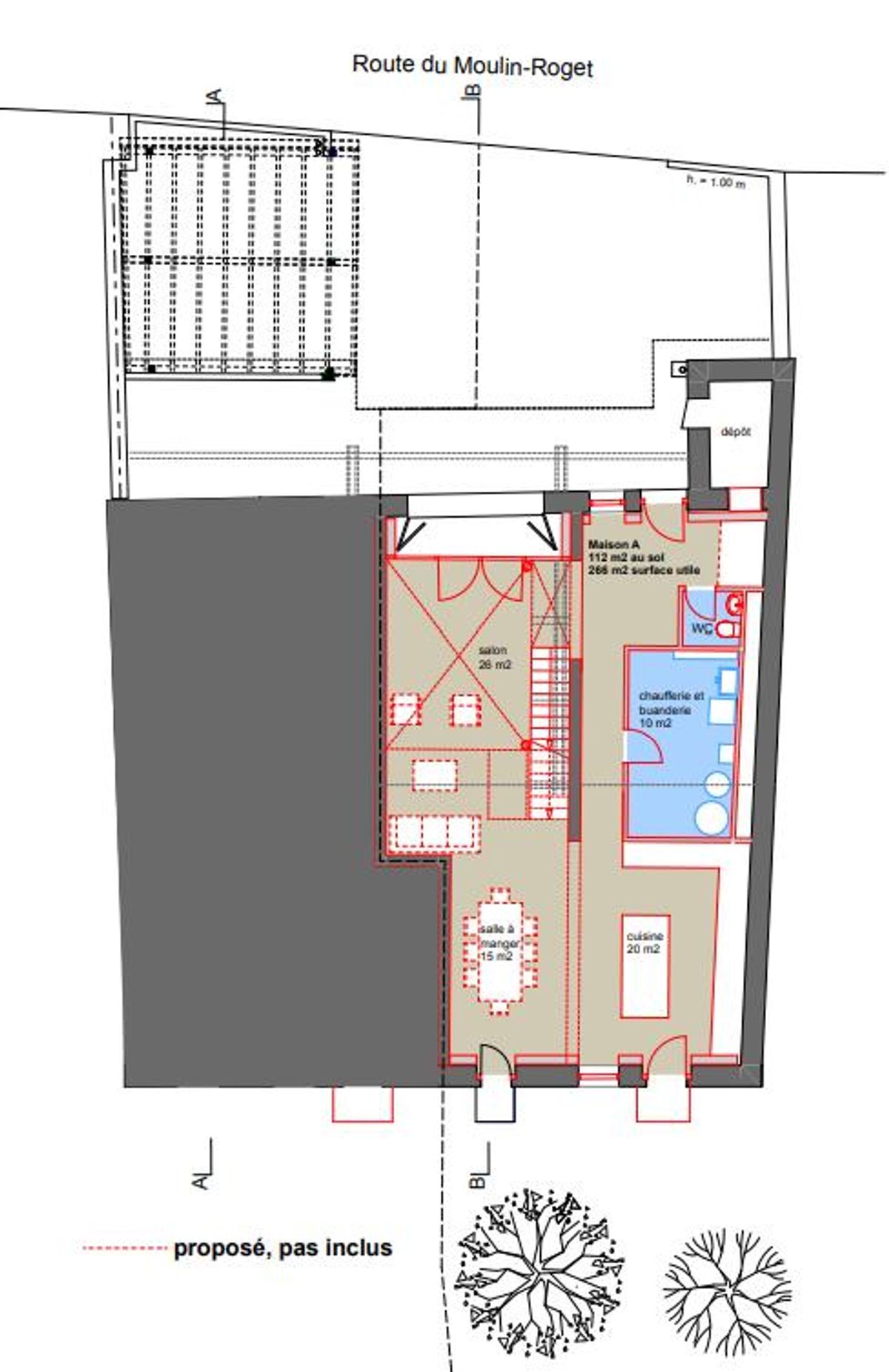
266 m²
266 m²
CHF 2'280'000.-
CHF 8'571.-/m²
Route du Moulin-Roget 7, 1237 Avully
Da convenire
La Grange de Moulin Roget - Promozione di 2 ville contigue - Lotto A
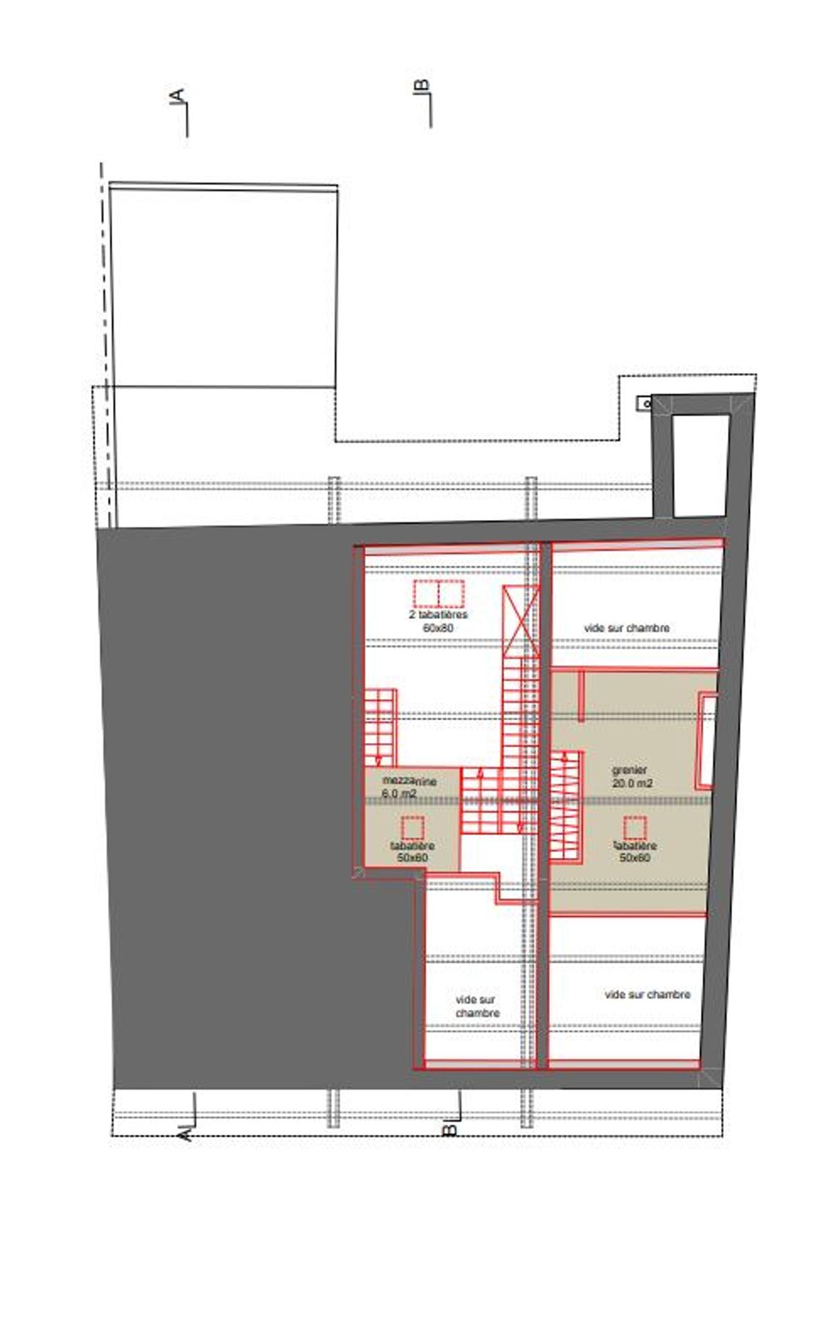
Situata nel cuore del villaggio di Avully, questa nuova promozione, presentata in collaborazione con Friedli Consulting, è il risultato della ristrutturazione di un vecchio fienile. Si tratta di due case contigue su due piani con sottotetto, conformi alle norme HPE (Alta Prestazione Energetica), da vendere su progetto. Mariant l'autenticità dell'antico con tocchi moderni, questo progetto vi conquisterà con il suo ambiente tranquillo e verdeggiante. Edificata su un terreno di 465 m2, la villa A offrirà una superficie abitabile di 266 m2, distribuita su 2 piani e sottotetto, con le stanze disposte come segue: Zona d'ingressoCucina aperta sulla sala da pranzoSoggiorno con accesso a terrazza e giardinoWC per gli ospitiCentrale termica / lavanderia PRIMO PIANO Grande suite padronale con bagnoCamera con bagno annessoCamera con bagnoAmpio locale giochi SOTTOTETTO SoppalcoGranaio La villa disporrà di due posti auto situati davanti all'ingresso, nonché di uno spazio dedicato per...










































































































































