Single family house
1,026 m²
1226 Thônex
To agree
Located just a few minutes from the city center of Geneva, this unique property combines charm, authenticity and potential. This estate offers a bucolic setting with its historic buildings, its century-old park bordered by the Foron River and a picturesque atmosphere. Composition The property consists of two mixed-use buildings, totaling approximately 1,026 m² of usable area and 2,999 m³ of volume: - A first building on three levels, currently used for residential and commercial purposes. - A second building also on three levels, complementary to the first. - The whole is completed by a wooded park, garages and numerous parking spaces. Development Potential The property requires a complete renovation, offering several possibilities: - Creation of a hotel-restaurant with a large capacity for guests. - Realization of a residential project, such as apartments or village houses with private gardens. - Transformation into a charming residence for private use. Advantages With its ideal...
Villa
6 Rooms
6 Rooms
170 m²
170 m²
CHF 2,090,000.-
CHF 12,294.-/sqm
1226 Thônex
To agree
New project - Contemporary THPE villa with garden - Calm & light in Thônex
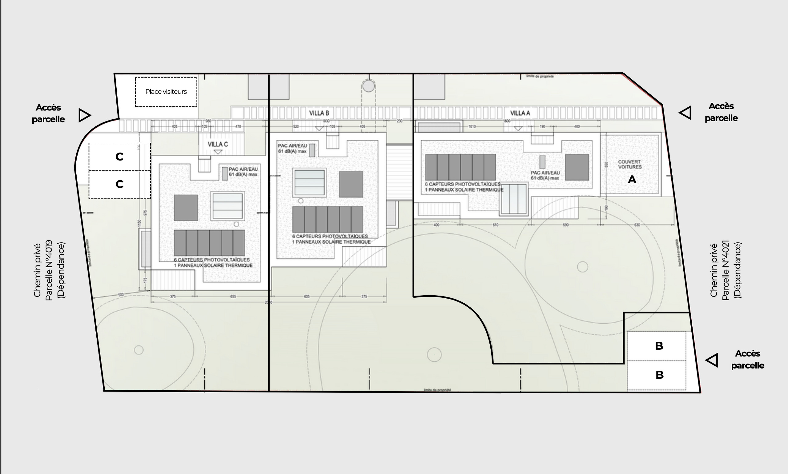
***Authorized in force*** Located just outside Geneva, Thônex is a charming town with a peaceful atmosphere, green spaces and a pleasant neighborhood life. Well connected, it offers easy access to the city center while providing an ideal setting for family life. Located in Thônex, in the heart of a quiet and green residential neighborhood, the project offers three contemporary villas with clean and elegant lines. Designed with care, they offer a bright and comfortable living space thanks to large bay windows opening onto the garden on the ground floor and onto the terrace on the first floor. Carefully arranged, the villas provide their occupants with privacy and tranquility, with no neighboring properties. Villa B, with a living area of 170 m², is distributed as follows: Ground floor garden An entrance with cupboards A guest toilet A 40 m² living room A 22.45 m² kitchen / dining room A 19.20 m² terrace 1st floor Four bedrooms, including a master bedroom with a private balcony of...
Villa
6 Rooms
6 Rooms
166 m²
166 m²
CHF 2,290,000.-
CHF 13,795.-/sqm
1226 Thônex
To agree
New project - Contemporary THPE villa with garden - Calm & light in Thônex
***Authorized in force*** Located just outside Geneva, Thônex is a charming town with a peaceful atmosphere, green spaces and a pleasant neighborhood life. Well connected, it offers easy access to the city center while providing an ideal setting for family life. Located in Thônex, in the heart of a quiet, green residential neighborhood, the project offers three contemporary villas with clean, elegant lines. Designed with care, they offer a bright and comfortable living space thanks to large windows opening onto the garden on the ground floor and onto the terrace on the first floor. Carefully arranged, the villas provide their occupants with privacy and tranquility, with no neighboring properties. Villa A, with a living area of 166 m², is distributed as follows: Ground floor garden An entrance with cupboards A visitor's toilet A 32 m² living room / dining room A 15 m² kitchen A 15.6 m² terrace 1st floor Four bedrooms, including a master bedroom with a private balcony of 7.5 m² A...
Twin house
7 Rooms
7 Rooms
141.5 m²
141.5 m²
CHF 2,290,000.-
CHF 16,184.-/sqm
Centre, 1226 Thônex
To agree
Beautiful bright semi-detached villa in Thônex
7 rooms, approx. 141.5 m2 living space, on a plot of 627 m2, this south-west facing villa has optimal exposure at every hour of the day. It has a beautiful living room opening onto the terrace and a well-maintained garden. 10 min. from the motorway Built in 1964 Renovated between 1987 and 2025: Attic, WC, bathroom, corridor, stairs, shutters, windows and frames, bedroom, shower, roof and plumbing inspection and maintenance, boiler, bathroom and office room refreshment. Living space: approx. 141.5 m2 Useful space: approx. 225 m2 Plot size: 627 m2 South-west facing Heating: Oil/radiators Number of rooms: 7 Bedrooms: 4 1 office 2 Bathrooms 1 Guest WC Luminous Beautiful living room of approx. 50 m2 Closed kitchen 2 Fireplaces Electric shutters and blinds Attic Laundry room Cellar Bioclimatic pergola with awning on the sides Terrace in the garden Protected play area for children Beautiful and well-maintained garden Simple garage with direct access to the house 1 outdoor parking space Close...
House
8 Rooms
8 Rooms
340 m²
340 m²
CHF 4,300,000.-
CHF 12,647.-/sqm
1226 Thônex
To agree
Magnificent luxury villa in Thônex
Ref. 4034GK ? Thônex Exceptional villa in Thônex, just 15 minutes from the center of Geneva. Set on a private plot of 1600 m², this property of over 300 m² combines modern design and high-end amenities. Key Features: - 5 spacious bedrooms and 8 rooms - Spacious basement including a wine cellar, games room, and laundry room - Spacious garden with terrace, heated pool, and jacuzzi - Covered garage for 3 cars, with outdoor parking for up to 10 vehicles - High-end finishes, including a semi-open-plan fitted kitchen with dining area - Modern bathrooms - Solar panels - Prime location in a quiet and private residential area A rare opportunity! Contact George Kalaidis for a viewing at +41 77 251 6500 Ref. 4034GK ? Thônex Exceptional villa in Thônex, just 15 minutes from the center of Geneva. Situated on a private plot of 1600 m², this property of over 300 m² combines modern design and high-end amenities. Key Features: - 5 spacious bedrooms and 8 rooms - Spacious basement including a...
Single family house
5 Rooms
5 Rooms
123.6 m²
123.6 m²
CHF 1,770,000.-
CHF 14,320.-/sqm
1226 Thônex
To agree
Single family house
Row house
7 Rooms
7 Rooms
CHF 2,490,000.-
1226 Thônex
To agree
Exclusive: Charming semi-detached house with pool
OFF MARKET Located in a quiet residential area, this beautiful semi-detached house offers about 280 m² of living space on a plot of 360 m². Built in the early 1990s and carefully maintained, it is attractive because of its harmonious blend of comfort, elegance and functionality. It has 5 bedrooms, including a master suite. The landscaped grounds invite you to relax with a swimming pool, a convivial terrace, a flowered arbor and ambient lighting. A spacious double garage completes the property. Ideally located close to schools, shops and public transport, this property is the ideal living environment for a family seeking serenity and quality of life. OFF MARKET Située dans un quartier résidentiel paisible, cette belle maison mitoyenne offre environ 280 m² de surface utile sur une parcelle de 360 m². Édifiée au début des années 90 et soigneusement entretenue, elle séduit par son alliance harmonieuse de confort, d'élégance et de fonctionnalité. Elle dispose de 5 chambres...
Bifamiliar house
6 Rooms
6 Rooms
CHF 2,090,000.-
1226 Thônex
To agree
Contemporary 6-room villa
Located in the 3 Chênes district, in the heart of a quiet, green residential area in the municipality of Thônex, discover the new "Les Villas Verdalia" project. Close to all amenities, this complex of 3 villas has been designed to offer its occupants optimal living comfort. Villa B is composed as follows: On the garden level: The 70 m² living space includes an entrance hall with storage, a living room / dining room with an open kitchen allowing access to the 99 m² terrace and garden, as well as a guest toilet. On the first floor: A landing leads to a master suite with a private bathroom and toilet opening onto a balcony, as well as three other children's bedrooms and a second full bathroom. On the basement level: A room to be fitted out according to your wishes and a technical room. Like the other villas, it benefits from natural light thanks to the large bay windows opening onto the garden. A large skylight is located on the first floor. Two outdoor parking spaces are available in...
Single family house
6 Rooms
6 Rooms
158 m²
158 m²
CHF 1,990,000.-
CHF 12,595.-/sqm
Au lieu dit A Lacolat, 1226 Thônex
Immediate
Contemporary detached house in a quiet area in Thônex
In a residential area of Thônex, Geneva, this contemporary villa located in a green and residential environment offers an ideal setting for families and nature lovers. With a living area of approximately 160 m2, its comfortable and functional living spaces, a south-facing garden, it will allow you to recharge your batteries and enjoy absolute peace and quiet every day. Close to all amenities, primary and secondary schools, you will also be within easy reach of cycle paths to the city center or Chêne-Bourg CEVA train station or to escape into the countryside of Geneva. The villa has 6 rooms with a ground floor comprising an entrance hall, an open-plan kitchen, equipped and arranged overlooking a large living room of approximately 38 m2 with access to the south-facing terrace and a guest toilet. The 1st floor is composed of three bedrooms including the master bedroom with its private bathroom and mini-dressing room as well as a 2nd bathroom. The basement consists of a large...
House
5 Rooms
5 Rooms
~ 180 m²
~ 180 m²
CHF 2,490,000.-
CHF 13,833.-/sqm
Chemin de la Béraille 19, 1226 Thônex
Immediate
Beautiful detached villa in the municipality of Thônex
VPI Courtage SA is delighted to present you this beautiful 5-room house of about 180 m² to renovate, located in the municipality of Thônex. Situated on a plot of 959 m², this property benefits from a quiet and green environment, while being very close to the city center of Geneva. Additional information: A complete renovation is possible, and we have an estimated cost of CHF 250,000.- excluding heating. We are currently evaluating the cost of heating. The photos included in the brochure will allow you to visualize: – The renovation possibilities according to this estimate (photos not contractual) – The photos of the current state of the property Enjoying generous volumes that will make the happiness of a family, the villa is distributed as follows: Basement: – 2 bedrooms; – 1 master bedroom with bathroom and dressing room; – Bathroom; – Laundry room; – Cellar; – PC shelter; – Technical room. Ground floor: – Living room with fireplace and ceiling height of 4-5...
House
6 Rooms
6 Rooms
160 m²
160 m²
CHF 2,190,000.-
CHF 13,688.-/sqm
villa, 1226 Thônex
To agree
Detached villa close to amenities
Exclusively located a stone's throw from schools, shops, transport (bus, streetcar, station) and the greenway, discover this off-plan detached house in a privileged setting in Thônex. Combining contemporary design, energy efficiency and personalization, it offers exceptional living comfort. Generous, bright living space With 160 m² gross living area and a functional basement, this house has been designed to meet the demands of comfort and modernity : Luminous living room with large bay windows, offering a convivial space open to the outdoors 3 beautiful bedrooms, including a master suite, for a comfortable night space 2 modern bathrooms, combining design and practicality 2 outdoor parking spaces, one of which is covered. Generous volumes and optimized natural light Contemporary design and customizable finishes With its modern, elegant architecture, this house seduces with its clean lines and harmony between aesthetics and functionality. Future buyers will be able to choose finishes...



























































































